About this home
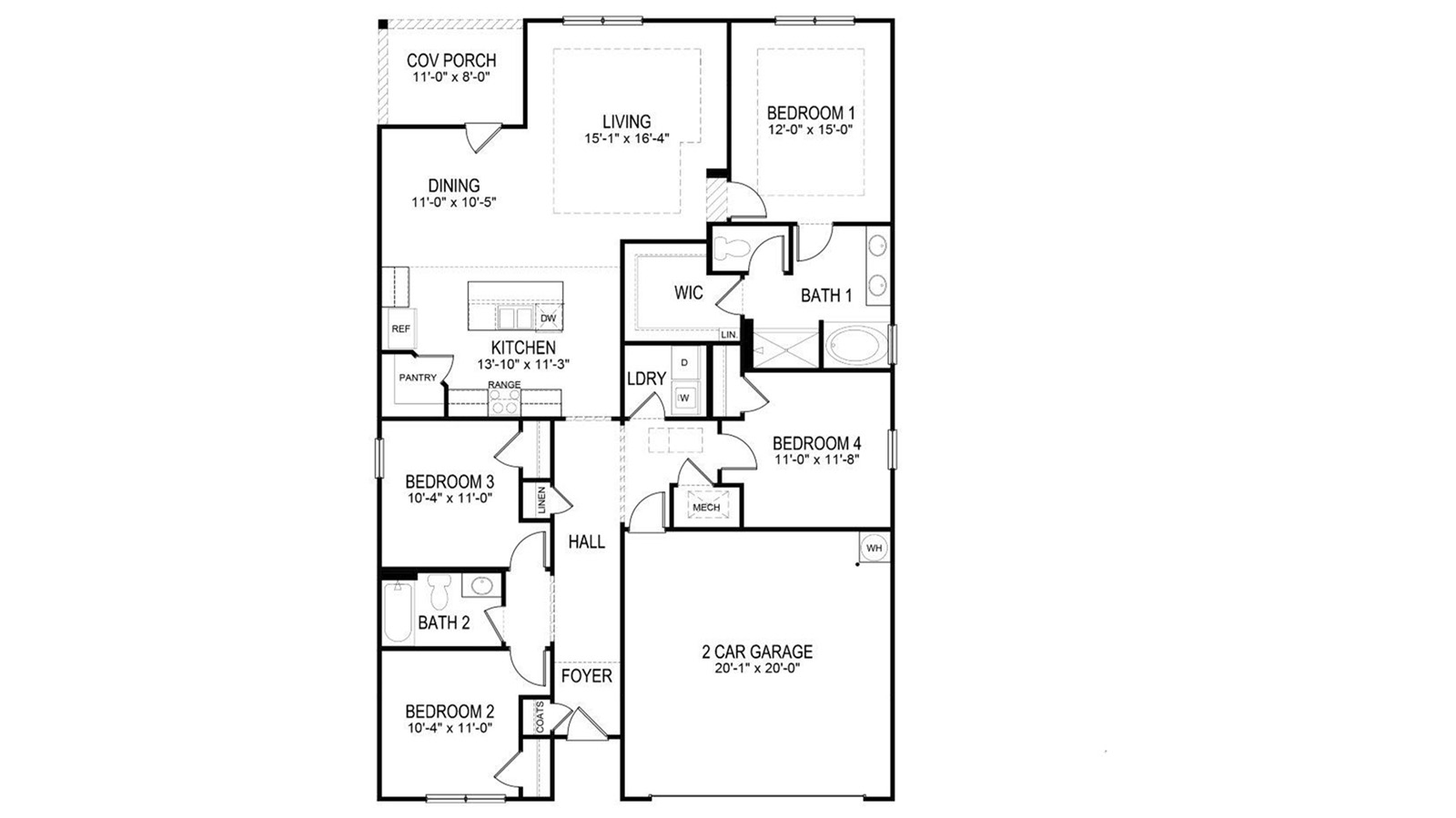
Welcome to 2084 Gadwall Drive in our new home community Mallard Landing located in Alabaster, Alabama. The Rhett plan is a well-designed single-level layout with 4 bedrooms and 2 bathrooms, encompassing 1,774 square feet for practical living. One standout feature of the Rhett plan is the seamless integration of the kitchen, breakfast area, and great room in an open concept layout, which is perfect for hosting guests. The kitchen is equipped with granite countertops, stainless steel appliances, and a pantry for added convenience and modern style.
The spacious Living Area features trey ceilings and leads to a shaded covered patio, creating a welcoming space for relaxation and entertaining. Bedroom One suite offers a private retreat with trey ceilings, a luxurious shower, separate garden tub, double marble vanity, private water closet, and a large walk-in closet for added comfort and luxury. For convenience and storage, the plan includes a two-car garage and a laundry room. In addition to Bedroom One suite, there are 3 other bedrooms and another full bathroom, providing ample space for family and guests. Furthermore, the home comes with a one-year builder's warranty, ensuring peace of mind for the new homeowners. Furthermore, every home is accompanied by a one-year builder's warranty to provide you with added peace of mind. It's important to note that our smart home technology package is included as part of your new home. The Smart Home Technology Package we offer is designed for effortless use and provides unmatched convenience, allowing you to easily control various essential features with just a simple touch. Some of the features of this package include lighting automation, an IQ panel, a video doorbell, keyless front door entry, and the ability to manage the temperature from the comfort of your phone. Give us a call and schedule your personal guided tour of the Rhett today!
Read more about this available home
Facebook LinkedIn Email