The Elston Floor Plan
starting at $304,900
|Express Series®
4 Bed |
2.5 Bath |
2 Garage |
2 Story
2,174 Sq. Ft.
About this floor plan
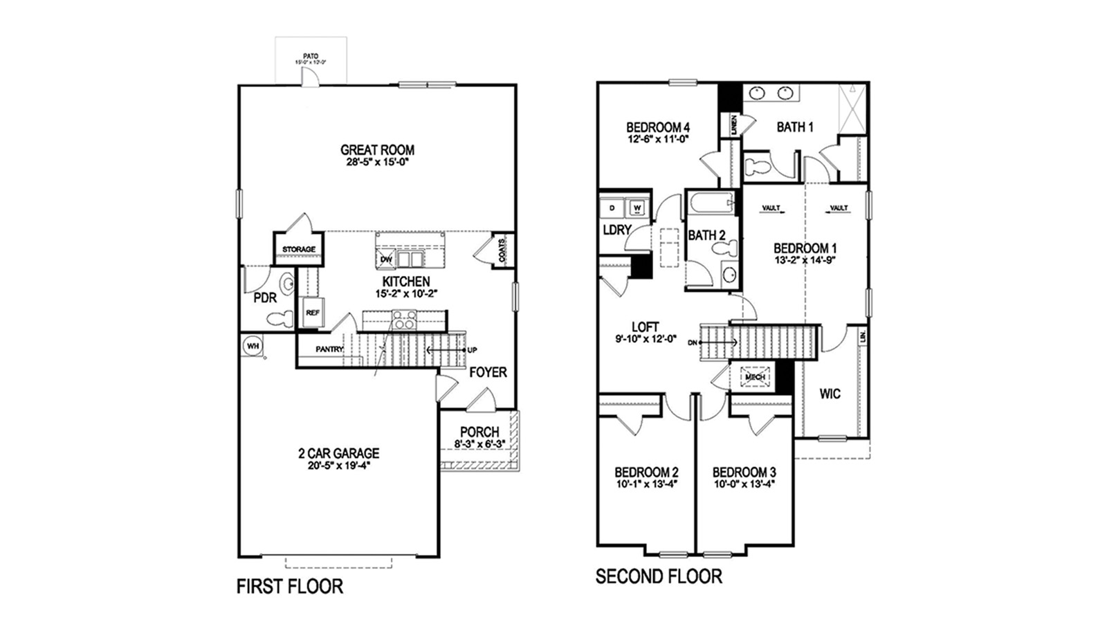
The Elston boasts a two-story layout, comprising 4 bedrooms and 2.5 bathrooms within 2,305 square feet. The open-concept kitchen includes a spacious island for added seating, a generous pantry, and flows into a sizable living room. Completing the main level are a powder room, coat closet, and extra storage space. The second level features Bedroom One with a vaulted ceiling and an opulent bathroom equipped with a walk-in shower, private water closet, double vanities, and a roomy walk-in closet. Additionally, there are 3 more bedrooms, a full bathroom, a walk-in laundry room, and a loft-style living room on the second level. Furthermore, the home comes with a one-year builder's warranty. Notably, your new home is equipped with our smart home technology package. This includes a Z-Wave programmable thermostat manufactured by Honeywell, a Z-Wave door lock manufactured by Kwikset, a Z-Wave wireless switch manufactured by Eaton Corporation, a Qolsys, Inc. touchscreen Smart Home control device, an automation platform from Alarm.com, a SkyBell video doorbell, and an Amazon Echo Dot. For more information, please speak to a New Home Sales Agent.
Facebook LinkedIn Email