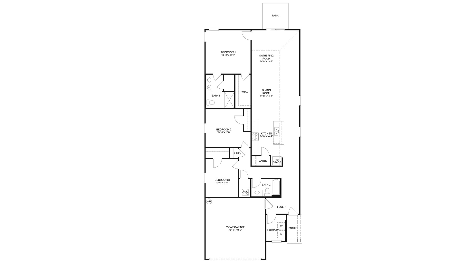
Berkeley+ Floor Plan
Call for Information
| Express Series®
3 Bed |
2 Bath |
2 Garage |
1 Story
1,646 Sq. Ft.
About this floor plan
The Berkeley+ floor plan features 1,647 square feet of thoughtfully designed living space, perfectly suited for first time homebuyers or those looking to downsize while maintaining comfort and style. This home features three spacious bedrooms and two full bathrooms, offering ample room for families, guests, or a home office. The open-concept design creates a bright and inviting atmosphere, with plenty of windows and a vaulted ceiling in the main living areas, seamlessly connecting the kitchen, dining, and living areas great for easy entertaining and everyday living. The kitchen provides generous counter space, plenty of storage, and a practical layout. Retreat to the main bedroom suite with its private bathroom, designed as a peaceful sanctuary to unwind after a busy day. Additional highlights include a two-car garage for convenience and flexible living spaces that adapt to your unique needs.
As a popular Express Series plan, the Berkeley+ strikes the perfect balance between functionality and charm. Whether you are simplifying your lifestyle or searching for a well-designed new home, the Berkeley+ floor plan offers a smart, stylish option tailored to support your new home needs. Every home also includes the Home is Connected® smart home system, giving you easy control of your home’s security, temperature, and more right from your fingertips. Love this layout? Let’s find the perfect Berkeley ll homesite for you. Call our Online Sales Concierge to get started today!
Read more about this plan
{"InvalidUserInputMessage":"Please check your data entered again","ServerErrorMessage":"We couldn't share this page via email, try again later","SuccessResultCode":0,"InvalidUserInputResultCode":1,"ServerErrorResultCode":2,"HostName":"http://www.drhorton.com","DefaultPageUrl":"https://www.drhorton.com/florida/jacksonville-area/jacksonville/bridle-creek-express/floor-plans/berk","DefaultModalHeader":"Share this property."}
Facebook LinkedIn Email