Lawson Floor Plan
Call for Information
| Tradition SeriesSM
4 Bed |
3 Bath |
2 Garage |
2 Story
2,896 Sq. Ft.
About this floor plan
Excited to talk new homes?
Text with us
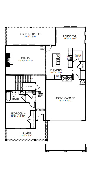
The Lawson is a two-story home offered at Avalon in Gastonia, NC. This new two-story plan offers four bedrooms, including one on the main level, as well as three bathrooms, a loft and a two-car garage.
As you step onto the porch and into the home, you’ll be greeted by an inviting foyer and a bedroom perfect for a guest room or a home office. You are then welcomed into a spacious family room area that opens to the kitchen area. The chef’s kitchen is equipped with stainless steel appliance, large granite countertops with tile backsplash, ample storage space, a walk-in pantry, and a kitchen island.
Upstairs the primary bedroom offers a large en-suite bathroom with a soaking tub and shower, and large walk-in closet. The additional two bedrooms provide comfort and privacy for every household member long with a bathroom and convenient laundry room. A loft space on the second floor can be used as a media room, home office, or playroom. With its thoughtful design, spacious layout, and modern conveniences, the Lawson is the home for you at Avalon in Gastonia, NC.
Read more about this plan
{"InvalidUserInputMessage":"Please check your data entered again","ServerErrorMessage":"We couldn't share this page via email, try again later","SuccessResultCode":0,"InvalidUserInputResultCode":1,"ServerErrorResultCode":2,"HostName":"http://www.drhorton.com","DefaultPageUrl":"https://www.drhorton.com/north-carolina/charlotte/gastonia/avalon/floor-plans/2896","DefaultModalHeader":"Share this property."}
Facebook LinkedIn Email