About this home
Excited to talk new homes?
Text with us
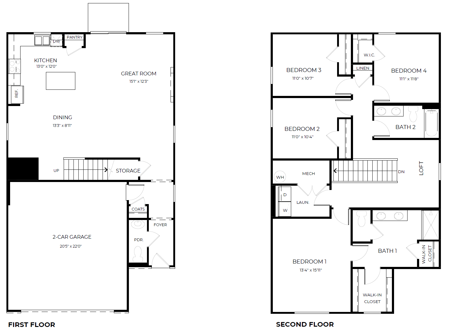
Lay your eyes on 5964 Pitch Pine Drive, home to the Elder floor plan within our Canal Winchester community, the Groves at Lansdowne Farms! This 2,156 square foot two-story home offers 4 bedrooms, 2.5 baths, and a layout built for connection, comfort, and style. Step through the welcoming foyer into the expansive great room, where natural light fills the open concept living, dining, and kitchen areas. The modern kitchen is designed for both function and beauty, featuring stainless steel appliances, a large center island, generous cabinetry, and plenty of counter space for meal prep and entertaining.
Upstairs, the spacious primary suite serves as a relaxing retreat, complete with a private ensuite bath featuring dual vanities, a walk-in shower, and a large walk-in closet. Three additional bedrooms, each with ample closet space, provide comfort for family and guests. A second-floor laundry room and additional full bath make everyday living effortless. Situated in the sought-after Lansdowne Farms community, the Elder offers access to modern amenities and a welcoming neighborhood atmosphere. Built with D.R. Horton’s commitment to quality and innovation, this home combines durability, energy efficiency, and elegant design. Schedule your visit today to see why the Elder is one of the area’s most popular floor plans. This home is currently under construction. Photos and video may be similar but not necessarily of subject property, including interior and exterior colors, finishes, and appliances. All D.R. Horton homes come with an industry-leading suite of smart home products that keep you connected with the people and place you value most.
Read more about this available home
Facebook LinkedIn Email