About this floor plan
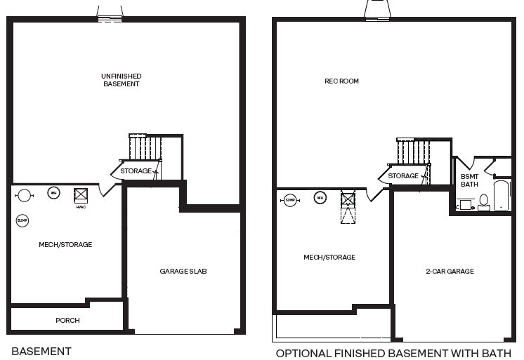
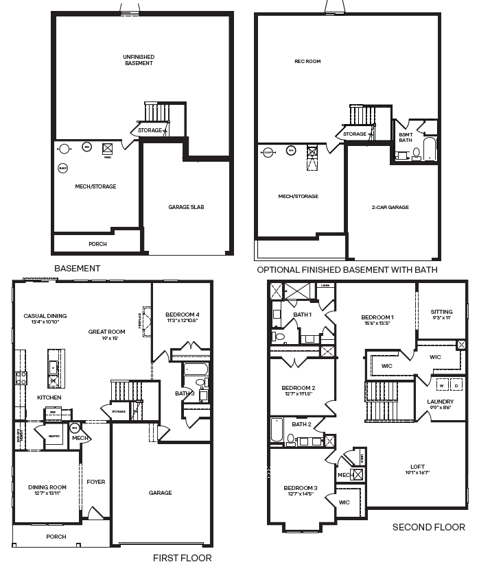
Welcome to The Hampshire at Laurel Hills, a beautifully designed new construction home located in the highly desirable Sarver, PA area. This established, sought-after community offers the ideal combination of luxury living, low-maintenance convenience, and easy access to shopping, dining, and major highways—so you can enjoy a peaceful setting without giving up everyday convenience. Featuring 3,300+ sq ft of thoughtfully designed living space, this impressive home includes 4 bedrooms, 3 full baths, a finished basement, and a 2-car garage. The open-concept layout is perfect for both entertaining and everyday living, centered around a gourmet kitchen with an oversized island, stylish backsplash, soft-close cabinetry, quartz countertops, stainless-steel appliances, and luxury vinyl plank flooring throughout the main living areas.
Ample storage and generous closets are thoughtfully integrated throughout the home, providing space for everything you need. With professionally selected finishes included, you can skip the stress of upgrades and move right in, the Hampshire remains a favorite for a reason. As you enter, you’re welcomed by a spacious formal dining room, ideal for hosting special occasions. The foyer opens to a bright, open living area where the kitchen overlooks the casual dining space and living room. A main-level bedroom and full bath tucked off the living area create the perfect guest suite or home office. Upstairs, enjoy the convenience of second-floor laundry and three additional bedrooms, including the luxurious owner’s suite featuring a cozy sitting area, a large walk-in closet, and a spa-inspired bathroom designed for relaxation. Don’t miss your opportunity to own this exceptional new home in Laurel Hills. Schedule your private tour today and experience the quality, comfort, and convenience of the Hampshire firsthand!
Read more about this plan
Facebook LinkedIn Email