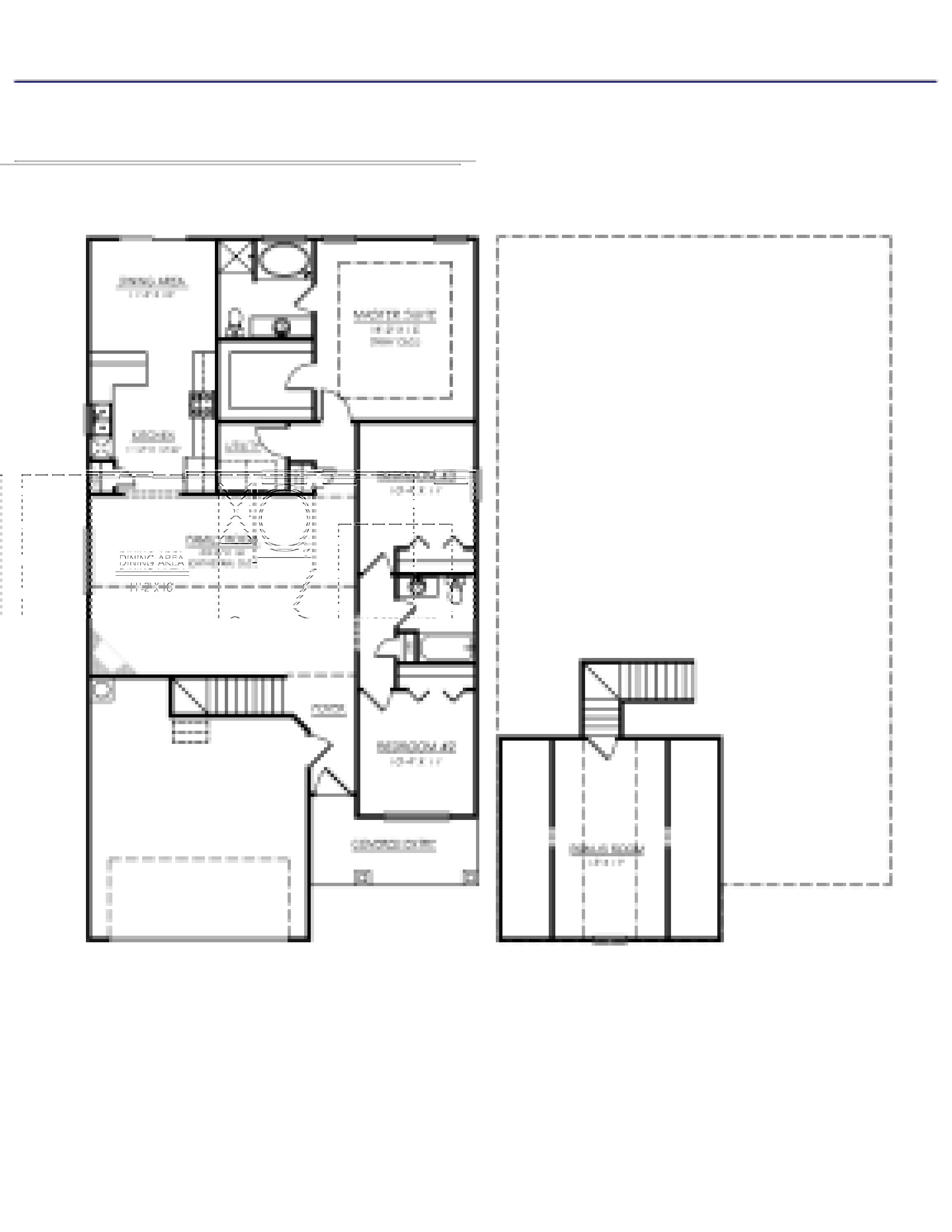
Bailey Floor Plan
Call for Information
| Tradition SeriesSM
3 Bed |
2 Bath |
2 Garage |
1.5 Story
1,776 Sq. Ft.
About this floor plan
The Bailey is one of our one-story homes featured in our Abelia Meadows community in Piedmont, South Carolina. This thoughtfully designed home features a welcoming layout that combines modern convenience with comfortable living. The Bailey includes three bedrooms, two bathrooms, and a two-car garage.
Upon entering through the covered entry, you’ll be greeted by a bright foyer that leads into the open-concept living space. The living room features a cathedral ceiling, creating an open and airy atmosphere that flows seamlessly into the kitchen and dining area. The kitchen is equipped with modern appliances, a walk-in pantry, and a breakfast bar, making it ideal for both everyday meals and entertaining. The primary suite features a private retreat with a tray ceiling, spacious walk-in closet, and en-suite bathroom with dual vanities and a separate soaking tub. Two additional bedrooms and a full bathroom provide ample space for family or guests. Upstairs, a large adds flexibility for use as a media room, playroom, or home office. With its functional design, open living areas, and comfortable layout, the Bailey is the perfect place to call home in Abelia Meadows.
Read more about this plan
{"InvalidUserInputMessage":"Please check your data entered again","ServerErrorMessage":"We couldn't share this page via email, try again later","SuccessResultCode":0,"InvalidUserInputResultCode":1,"ServerErrorResultCode":2,"HostName":"http://www.drhorton.com","DefaultPageUrl":"https://www.drhorton.com/south-carolina/greenville/piedmont/abelia-meadows/floor-plans/sbai","DefaultModalHeader":"Share this property."}
Facebook LinkedIn Email