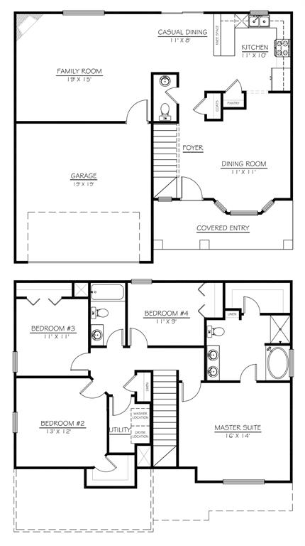
Huntington Floor Plan
Call for Information
| Tradition SeriesSM
4 Bed |
2.5 Bath |
2 Garage |
2 Story
1,925 Sq. Ft.
About this floor plan
The Huntington is one of our two-story homes featured in our Brook Valley community in Piedmont, South Carolina. This spacious home features four bedrooms, two and a half bathrooms, and a two-car garage. Designed with comfort and functionality in mind, the Huntington provides plenty of space for both everyday living and entertaining. Upon entering through the covered entry, you’ll be welcomed by an inviting foyer that leads to a formal dining room and open-concept main living area. The kitchen features modern appliances, a walk-in pantry, and a breakfast bar overlooking the casual dining and family room, perfect for hosting gatherings or enjoying meals. Upstairs, the primary suite features a private retreat complete with a large walk-in closet and an en-suite bathroom featuring dual vanities, a soaking tub, and a separate shower. Three additional bedrooms, a full bathroom, and a conveniently located laundry room provide plenty of space for family or guests.
With its thoughtful layout, open living areas, and modern design, the Huntington is the perfect place to call home in Brook Valley.
Read more about this plan
{"InvalidUserInputMessage":"Please check your data entered again","ServerErrorMessage":"We couldn't share this page via email, try again later","SuccessResultCode":0,"InvalidUserInputResultCode":1,"ServerErrorResultCode":2,"HostName":"http://www.drhorton.com","DefaultPageUrl":"https://www.drhorton.com/south-carolina/greenville/piedmont/brook-valley/floor-plans/shun","DefaultModalHeader":"Share this property."}
Facebook LinkedIn Email