Salem Floor Plan
Call for Information
| Tradition SeriesSM
4 Bed |
2.5 Bath |
2 Garage |
2 Story
2,618 Sq. Ft.
About this floor plan
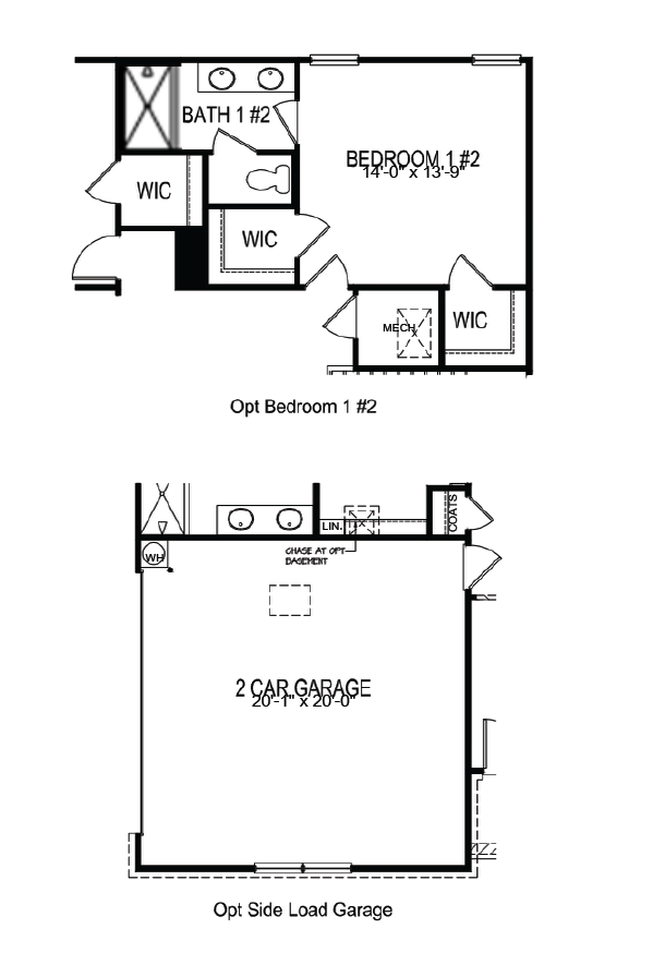
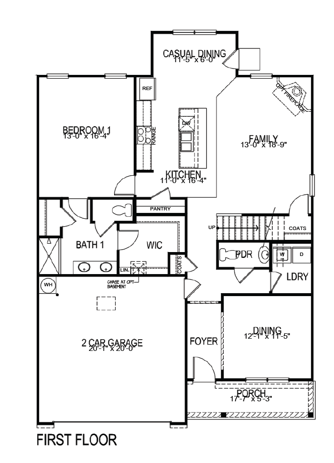
Check out the Salem, a stunning floorplan offered at Harrison Valley. This gorgeous two-story home features four bedrooms, two and a half bathrooms, and a two-car garage, featuring both luxury and practicality with the option of dual primary suites. As you enter, you’ll be welcomed by an inviting foyer that connects to a spacious dining room before leading into the heart of the home. The open-concept design includes a large living room that seamlessly blends into the functional kitchen. The gourmet kitchen is equipped with stainless steel appliances, ample cabinet space, and a large island with a breakfast bar, perfect for both cooking and casual dining. Adjacent to the kitchen, you'll find the main primary suite, complete with a large walk-in closet and a private bathroom.
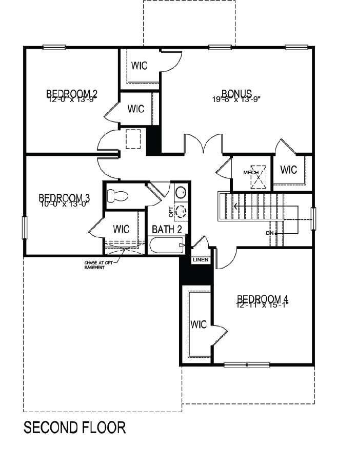
Upstairs, the optional second primary suite features two walk-in closets and a private bathroom, featuring plenty of space for relaxation. A versatile loft area upstairs provides additional space, perfect for a media room or playroom, if no secondary primary suite is chosen. Three additional bedrooms and a full bathroom complete the second floor, making this home perfect for multigenerational living with its dual primary suites.
Read more about this plan
{"InvalidUserInputMessage":"Please check your data entered again","ServerErrorMessage":"We couldn't share this page via email, try again later","SuccessResultCode":0,"InvalidUserInputResultCode":1,"ServerErrorResultCode":2,"HostName":"http://www.drhorton.com","DefaultPageUrl":"https://www.drhorton.com/south-carolina/greenville/simpsonville/harrison-valley/floor-plans/2618","DefaultModalHeader":"Share this property."}
Facebook LinkedIn Email