About this floorplan
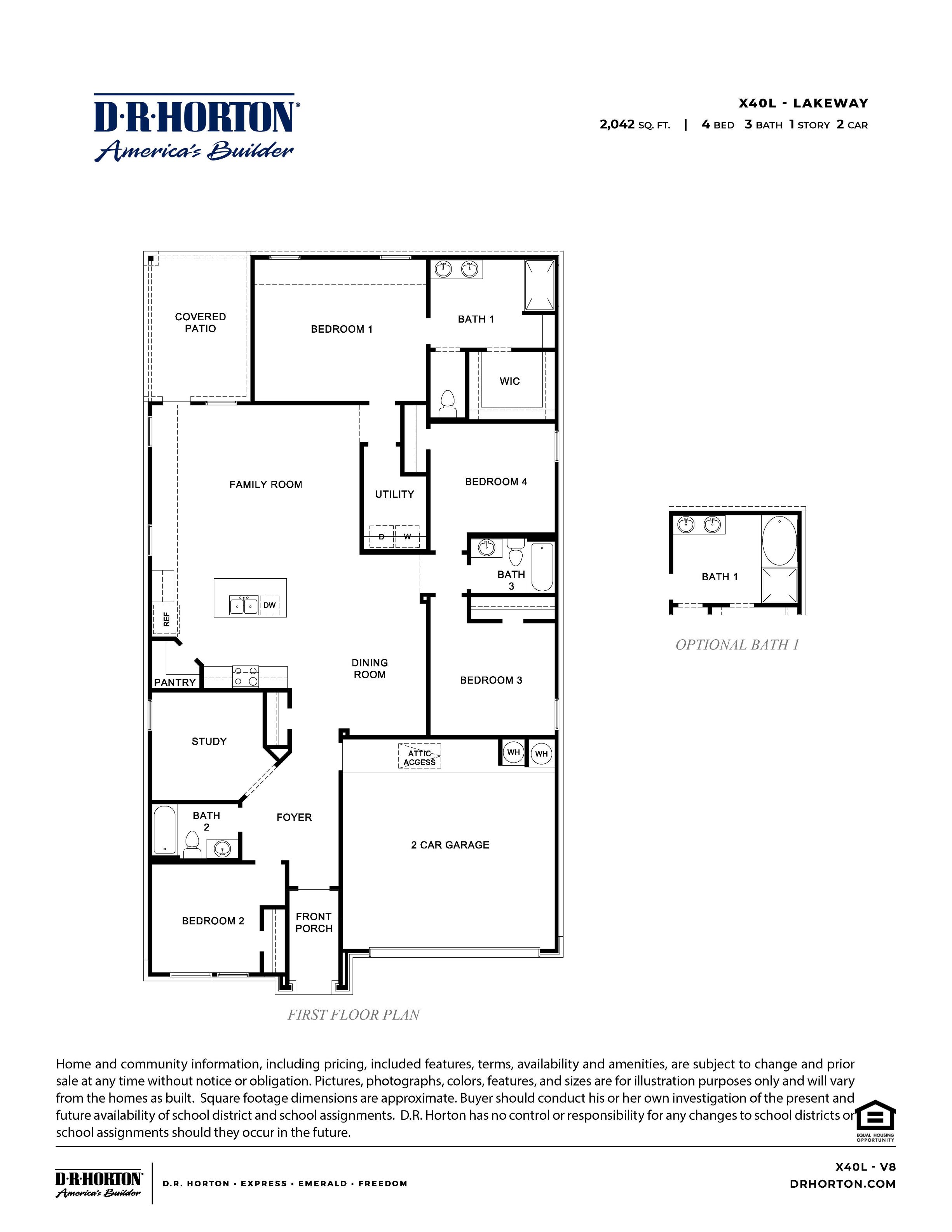
Welcome to the Lakeway floorplan at Lago Mar, a thoughtfully designed single-story home spanning 2,042 square feet in Iowa Colony, Texas. With four bedrooms, three bathrooms, a private study, and a two-car garage, this home offers the perfect combination of space and functionality for modern living.
As you step inside, a secondary bedroom and full bathroom are conveniently located near the foyer, ideal for guests or family members. The bedroom features plush carpeting, a bright window, and a tall closet, while the bathroom is complete with vinyl flooring and a tub/shower combination. Adjacent to this area, a versatile study with a large window creates a bright and inviting space, perfect for a home office, playroom, library, or media room. The heart of the home is the open-concept living area, where the kitchen, dining room, and family room seamlessly flow together, making it ideal for entertaining. The kitchen features stainless steel appliances, a spacious island, and a walk-in pantry, providing ample storage and prep space. Opposite the kitchen, two secondary bedrooms share a full bathroom with a tub/shower combo, each room offering a large window and a tall closet for storage. The utility room, located near the entrance to the primary suite, offers space for a washer and dryer for added convenience. The primary bedroom, tucked at the back of the home for privacy, features carpet flooring and two large windows overlooking the backyard. The primary bathroom includes dual sinks, a walk-in shower, and a separate toilet area, leading to a spacious walk-in closet with carpet flooring and plenty of storage. Step outside onto the covered back patio, complete with overhead lighting, where you can unwind and enjoy the outdoors in comfort. Designed for both comfort and practicality, the Lakeway floor plan is an excellent choice for families and entertainers alike. Schedule a tour today to see it in person! *Photos are for illustration only. Actual home may vary.
Read more about this plan
Request information
Facebook LinkedIn Email