About this home
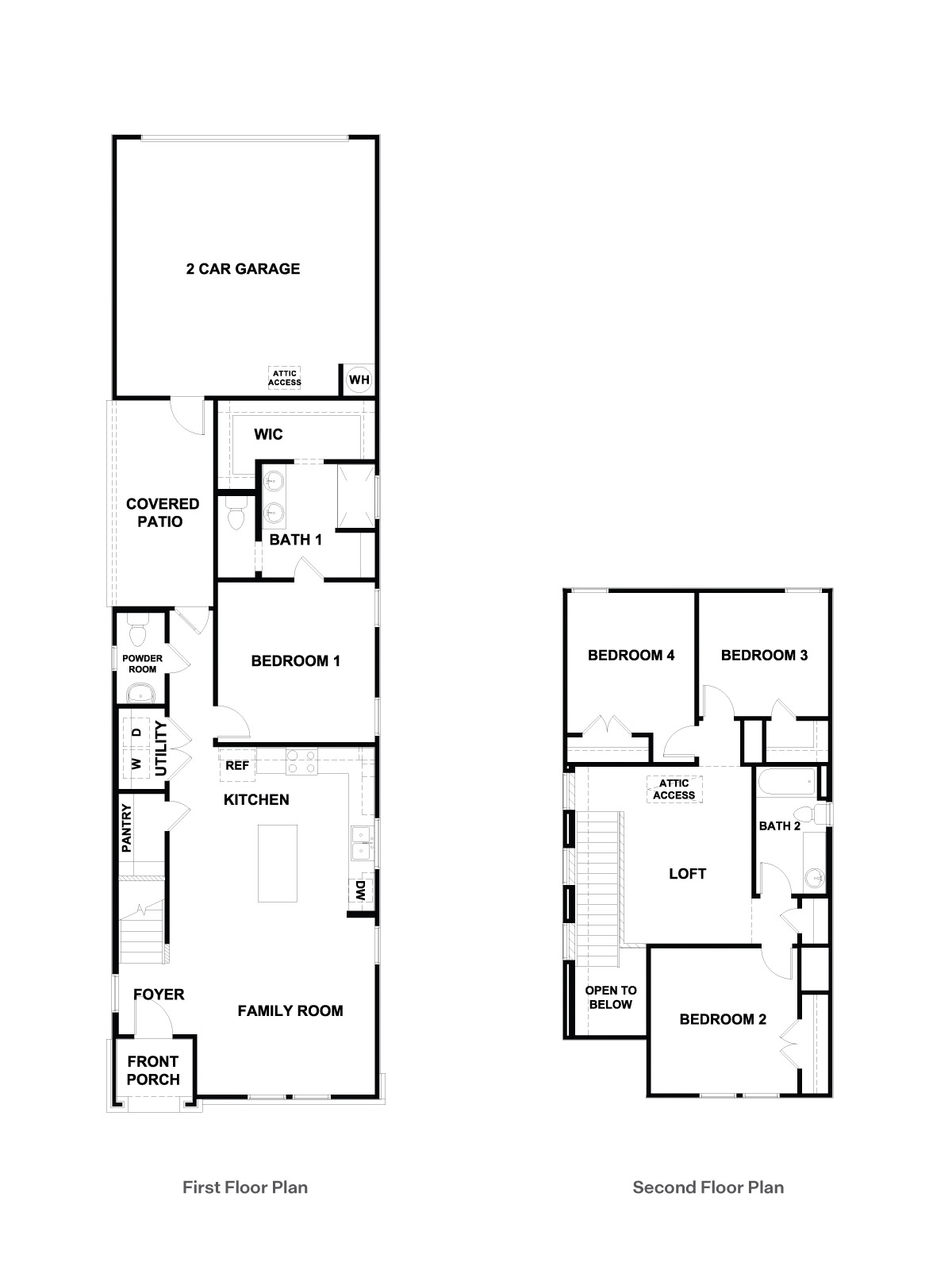
5510 Daylight Dr is one of our two-story floorplans available at Mayfair in New Braunfels, Texas. This 1,761 square foot home has 4 bedrooms, 2.5 bathrooms, a loft, and a 2-car garage. Our homes in Mayfair feature front masonry exteriors and the Blanco plan is available with 2 exterior options to choose from. As you step inside the home from the covered front porch, you’ll enter the family room and kitchen. This large, open concept living space will become the central hub of your home life. Enjoy entertaining in this bright and welcoming downstairs space. The kitchen includes quartz countertops, a large island, an oversized walk-in pantry closet, decorative backsplash, stainless-steel appliances, including a gas range, and 42’’ upper cabinets.
The Blanco features the primary bedroom ensuite downstairs. Jump start your morning routine in your private bathroom, which includes a walk-in shower, double vanity with quartz countertops, private toilet area with a door, and a walk-in closet. A powder room and utility closet are just outside the primary suite, as well as the covered patio, which connects to the 2- car garage. Ascend the stairs to the second floor, where you’ll enter the loft area. This multi-use space can easily be transformed into an office or play area for the kids. Three secondary bedrooms are located upstairs and include carpet and closets with wood shelving. The secondary bathroom features a shower/tub combination and a single vanity with a quartz countertop. The Blanco includes vinyl flooring throughout the common areas of the home, and carpet in the bedrooms. All our new homes feature a covered back patio, full sod, irrigation system in the front and back yard, and a 6’ privacy fence around the backyard. This home features our America’s Smart Home base package, which includes the Video Front Doorbell, Front Door Deadbolt Lock, Home Hub, Thermostat, and smart switches. Contact us today and find your home at Mayfair
Read more about this available home
Facebook LinkedIn Email