About this home
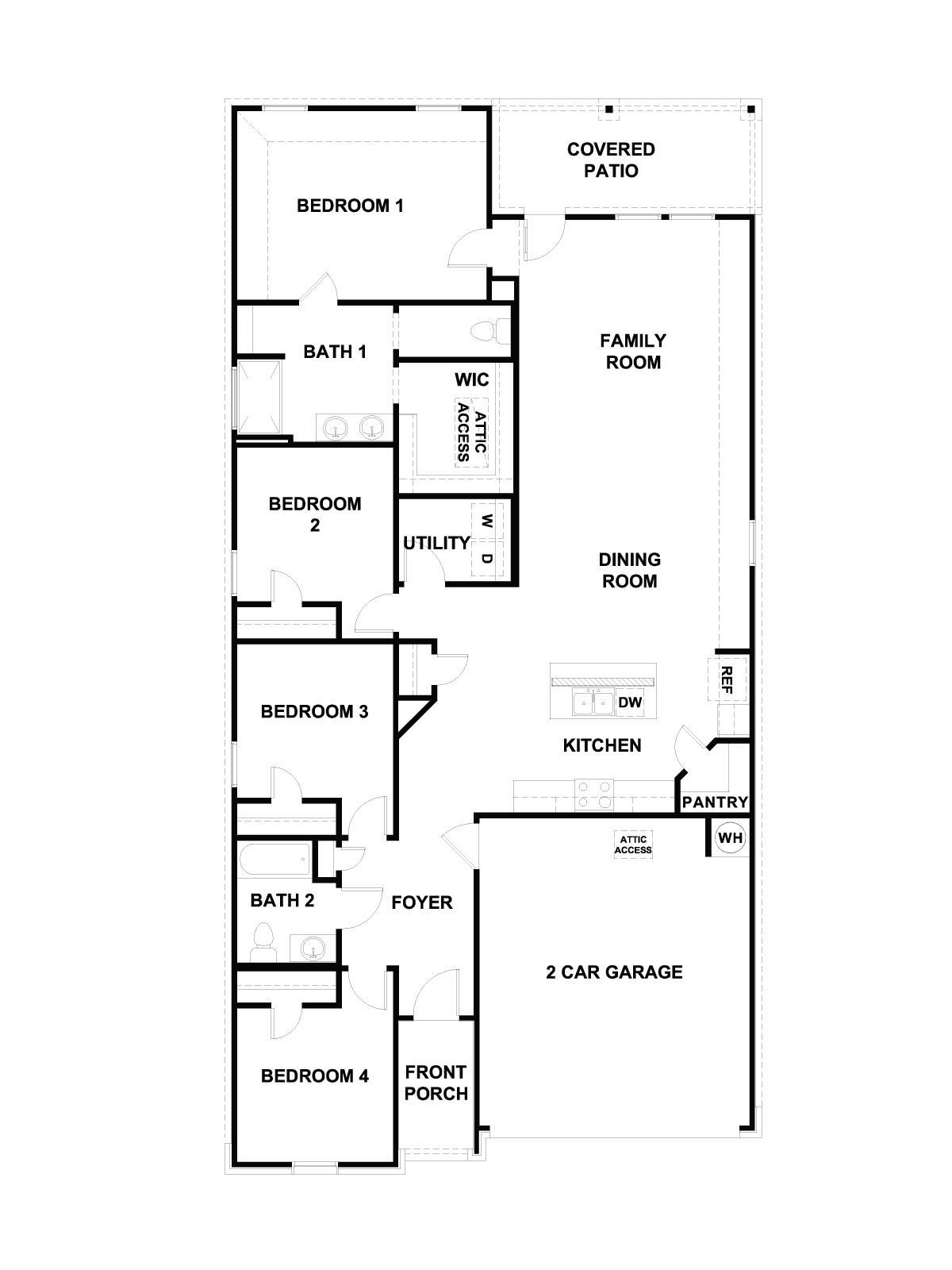
5524 Eula Ln is one of our one-story homes featured in our Mayfair community in New Braunfels, Texas. This efficient floorplan offers 1,780 square feet of living space across 4 bedrooms, 2 bathrooms and a 2 car garage. Our homes in Mayfair feature front masonry exteriors and the Gaven is available with 2 exterior options to choose from. Stepping inside the home from the covered entryway, you will find two secondary bedrooms and a full bathroom off the foyer. The secondary bathroom includes a shower/tub combination, and the bedrooms feature a closet with shelving.
Moving further into the home, you will find the kitchen, which includes an island with an undermount sink, stainless steel appliances, including a gas range, quartz countertops and 42” upper cabinets. The dining room and family room flow easily from the kitchen and you’re sure to make many memories in this beautiful space. The utility room and bedroom 2 are off the kitchen. With the utility room at the center of the home, your laundry chores will be an easy task to complete. The primary bedroom is tucked off the family room at the back of the home. Featuring its own attached bathroom with a walk-in shower, double vanity with quartz counter tops, private toilet area with a door, you’ll look forward to your bedtime routine at the end of the day. A walk-in closet is connected to the bathroom, with plenty of room for your accessories and prized possessions. The Gaven includes vinyl flooring throughout the common areas of the home, and carpet in the bedrooms. All our new homes feature a covered back patio, full sod, irrigation system in the front and back yard, and a 6’ privacy fence around the backyard. This home features our America’s Smart Home base package, which includes the Video Front Doorbell, Front Door Deadbolt Lock, Home Hub, Thermostat, and smart switch. Contact us today and find your home at Mayfair.
Read more about this available home
Facebook LinkedIn Email