About this floor plan
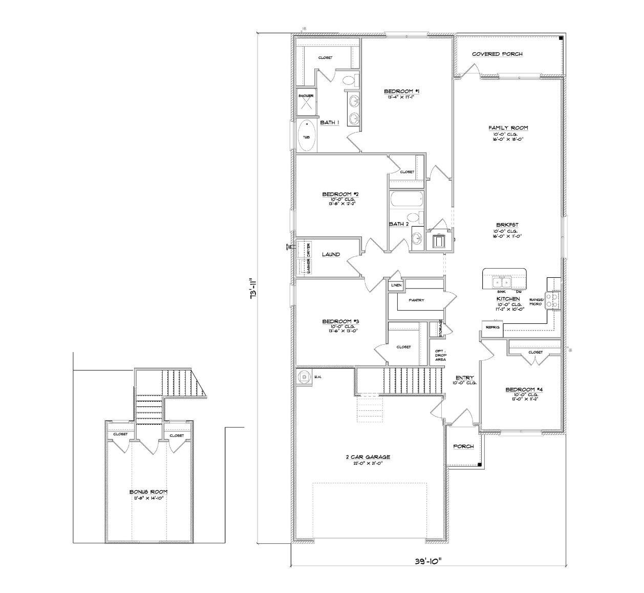
Welcome to the Blue Ridge floorplan, an exciting addition to the Truland series at Harvest Green West. This stunning two-story home spans 2,277 square feet, offering 4 spacious bedrooms, 2 modern bathrooms, and a 2-car garage, complete with a versatile bonus room. Upon entering, you'll immediately notice the thoughtful design, with the garage entry to one side and a cozy front bedroom on the other. The heart of the home is the expansive, open-concept layout, where the modern eat-in kitchen seamlessly flows into the inviting great room. From here, step out onto the covered porch, perfect for entertaining or enjoying peaceful outdoor moments.
The home’s well-designed flow places three of the bedrooms together on the opposite side, with a convenient hallway leading to the two front bedrooms, which are ideally positioned next to the laundry room and a shared bathroom. Tucked away at the back corner, the luxurious primary suite offers a peaceful retreat. Its spa-inspired ensuite features a vanity with dual sinks, a soaking tub, and a separate shower for ultimate relaxation. Upstairs, discover the expansive bonus room, which boasts two generous closets and offers endless possibilities—whether you envision a playroom, office, home gym, or media room. The Blue Ridge floorplan sets the stage for a truly exceptional lifestyle. Schedule your tour today to experience this beautiful home and see why it’s the perfect fit for you in Harvest Green West! Pictures are of similar home and not necessarily of subject property, including interior and exterior colors, options, and finishes. Buyer to verify all information during due diligence. Harvest Green West is centrally located off of Highway 181. Enjoy quick access to all the local shops and boutiques, dining and entertainment that Fairhope offers while also being very close to Daphne and the communities of the Eastern Shore. Harvest Green West features gorgeous community amenities and provides access to the award-winning Fairhope schools.
Read more about this plan
Facebook LinkedIn Email