About this floorplan
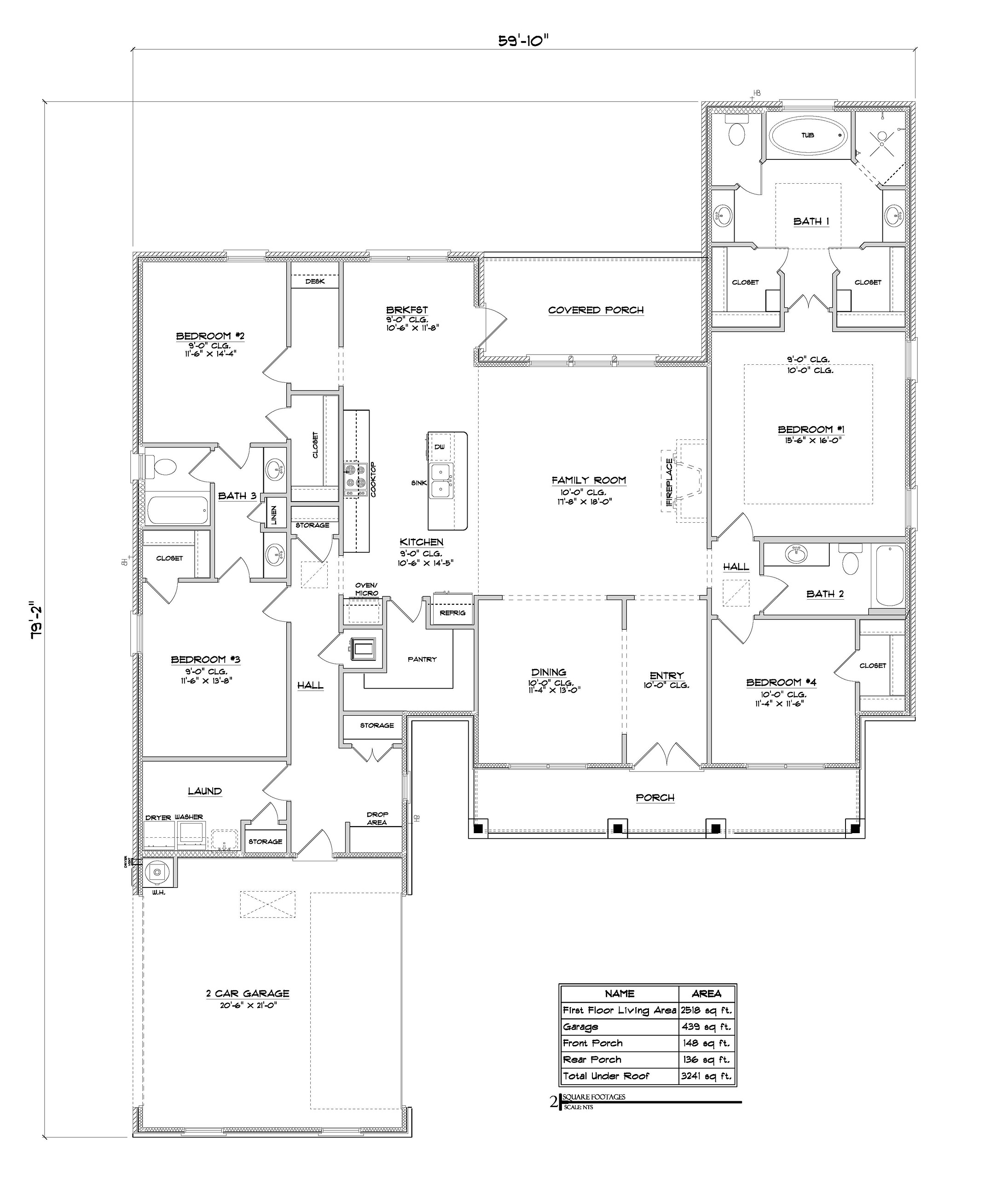
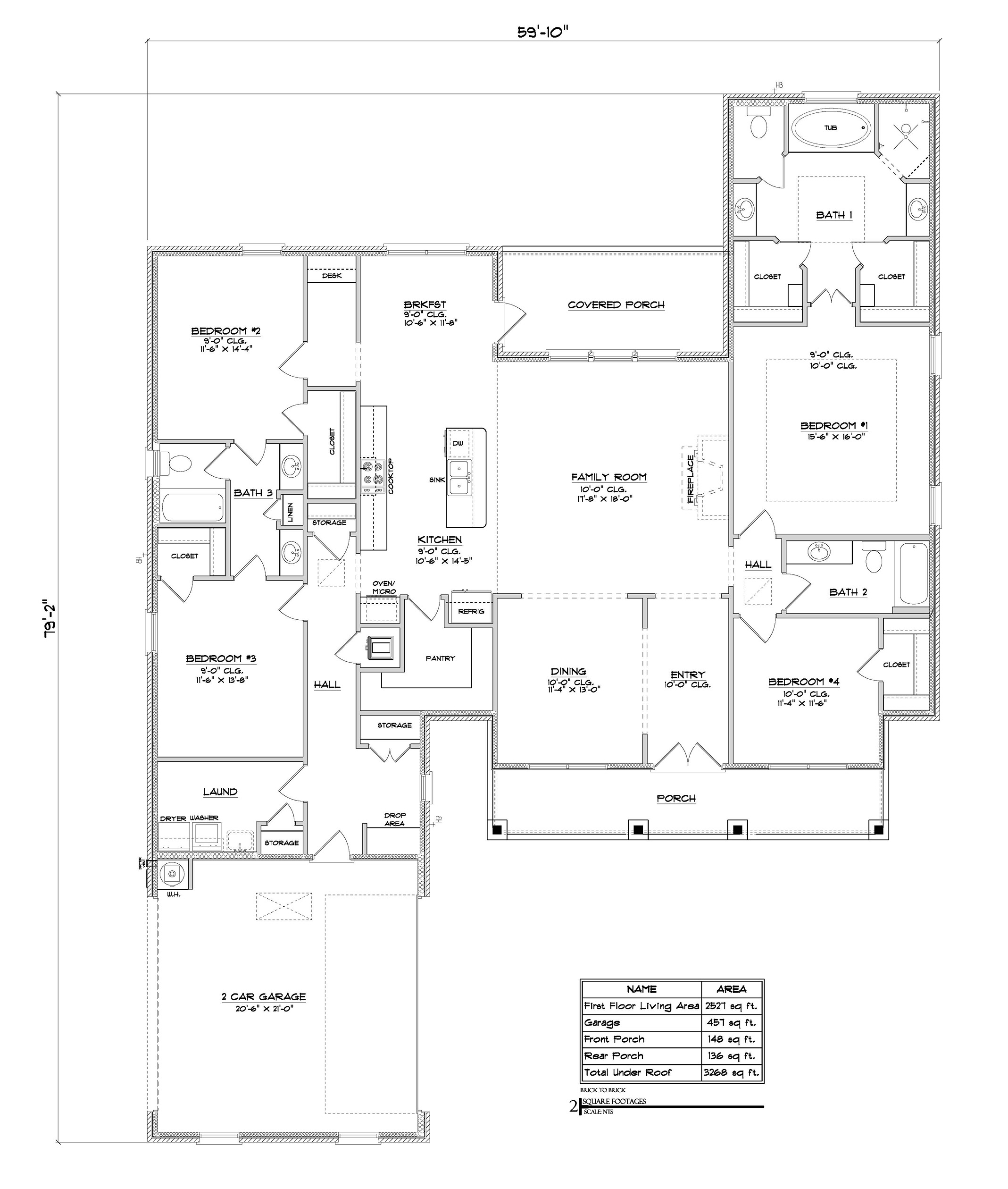
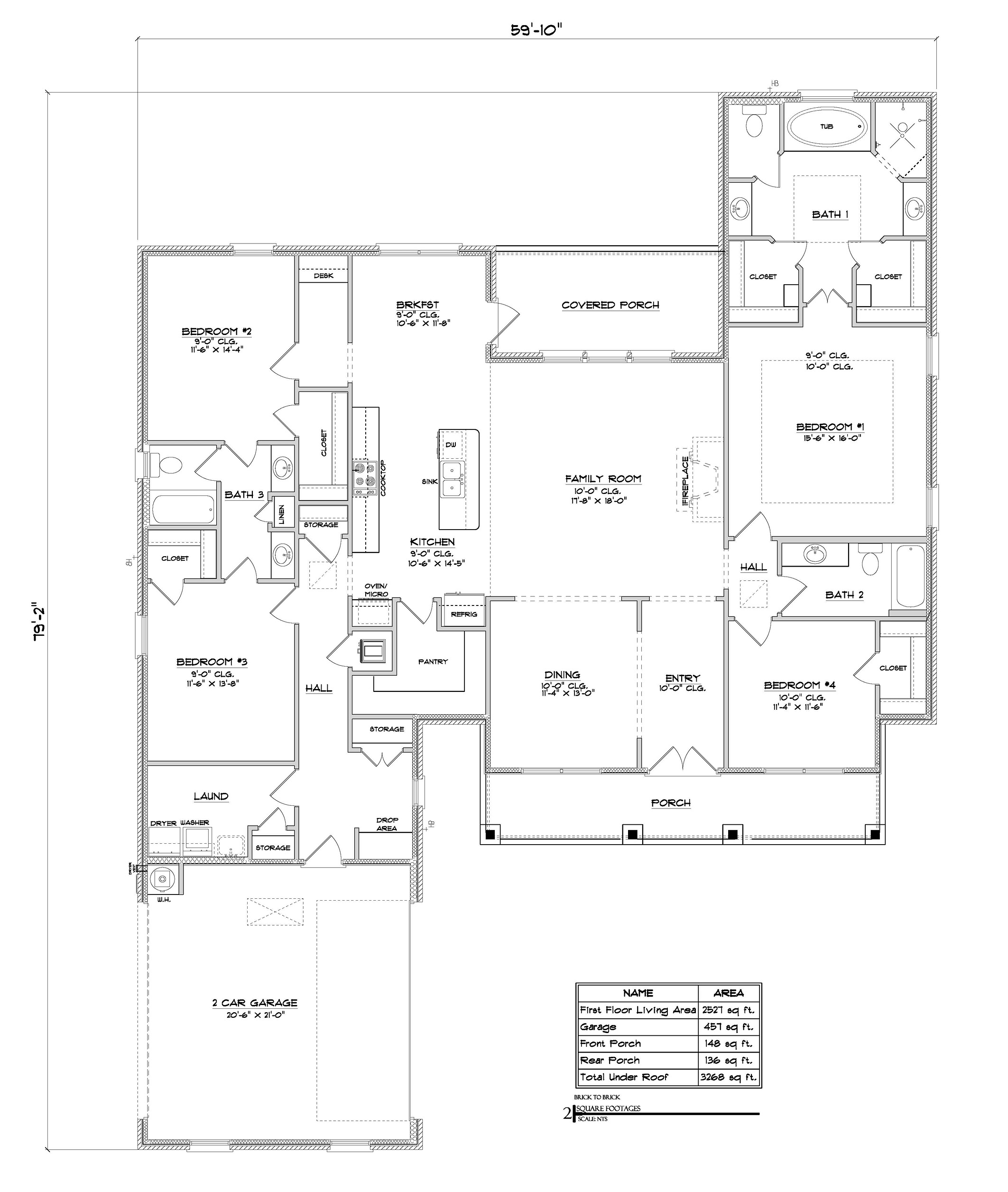
Welcome to the highly desirable Pecan floorplan, from our premier Truland line in the charming, established community of Old Battles Village in Fairhope, Alabama! This stunning floorplan features a large family room that opens to the kitchen for easy conversation with family and friends. You will enjoy beautiful features including a fireplace, large island, farm sink, and oversized pantry to name a few.
The primary suite will be a great place to relax and unwind with a separate soaking tub, and walk in tile shower, private water closet, his and hers closets and separate vanities. Bedrooms 2 and 3 include a Jack and Jill bathroom with double vanity, and separate shower/tub room. Bedroom 4 has a bathroom just outside of the room which is also the guest bath. This home also includes a large covered back porch, great for entertaining. Come see this home and all the designer finishes included such as the trim, moldings, wood flooring, upgraded granite counters, and much more. Schedule your tour to make your new home in Old Battles Village of Fairhope today. This home has it all and also includes a one-year builder warranty and a 10-year structural warranty along with Smart Home technology. The home is being built to Gold Fortified HomeTM certification, which may save the buyer on their homeowner’s insurance (See Sales Representative for details). Pictures are of similar home and not necessarily of subject property, including interior and exterior colors, options, and finishes. Buyer to verify all information during due diligence. Old Battles Village is a picturesque, established community in Fairhope, Alabama. It combines stylish, quality homes in a peaceful community with convenient proximity to Downtown Fairhope. The community features fabulous amenities such as a pool, gazebo, tennis and basketball courts and more.
Read more about this plan
Request information
Facebook LinkedIn Email