About this floor plan
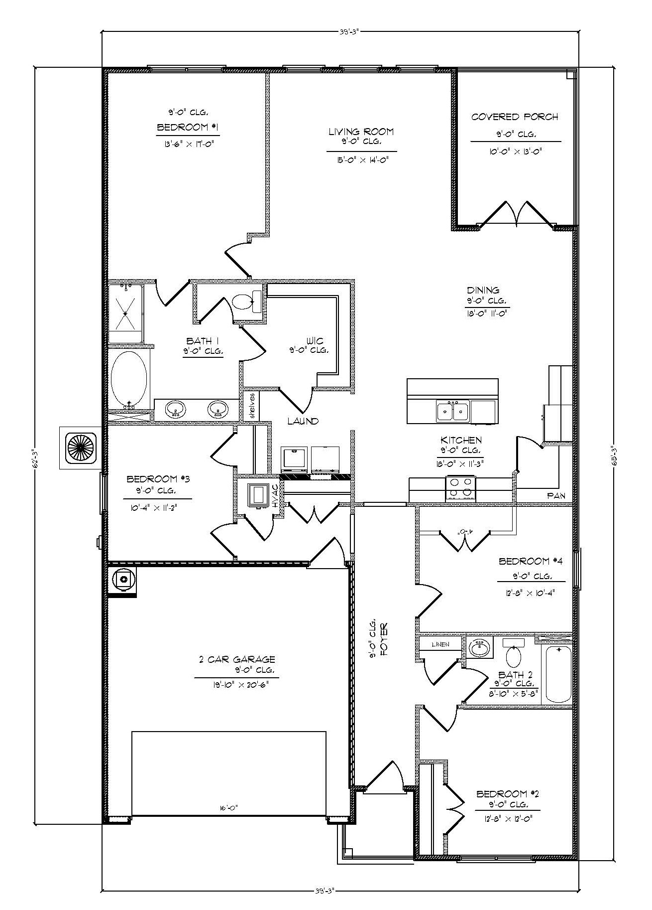
You’re invited to visit Iron Horse, our new home community in Foley, Alabama, and tour the Grayson floorplan. This highly desirable home offers 4 bedrooms and 2 bathrooms with over 1,800 square feet of living space. With three exterior options to choose from, the Grayson is sure to turn heads. As you enter through the front door, you’ll discover two bedrooms that share a full bathroom with a bathtub/shower combination and spare linen closet. Continue down the foyer to find a third bedroom and direct access to the two-car garage. At the end of the hall lies the heart of the Grayson, which is the open concept living space.
The laundry room, located across from the kitchen, offers a unique feature: a connection to the primary suite’s walk-in closet from maximum efficiency. The kitchen is a chef's dream, featuring ample counter space, a sleek peninsula island, elegant shaker-style cabinets, modern stainless-steel appliances, and beautiful granite countertops. A spacious corner pantry adds extra storage for your convenience. This area seamlessly flows into the dining area and living room. Connected to the dining room, you’ll find access to the large covered back porch. From the living room, the primary bedroom is in the back corner of the home, offering great privacy. It features an ensuite bathroom boasting a separate shower and soaking tub, double bowl vanities, a separate toilet area, and a large walk-in closet with access to the laundry room. Equipped with the Smart Home Connect Technology System, the Grayson offers modern conveniences such as a video doorbell, keyless entry, programmable thermostat, touchscreen control device, smart light switches, and more. Built to Gold FORTIFIED Home™ certification standards, this home may help reduce your homeowner’s insurance costs (ask your Sales Representative for details). Plus, it comes with a one-year builder warranty and a 10-year structural warranty, giving you peace of mind for years to come. Visit the Grayson and experience its charm for yourself. Contact us today to schedule a tour and make Iron Horse your new home community!
Read more about this plan
Facebook LinkedIn Email