About this floorplan
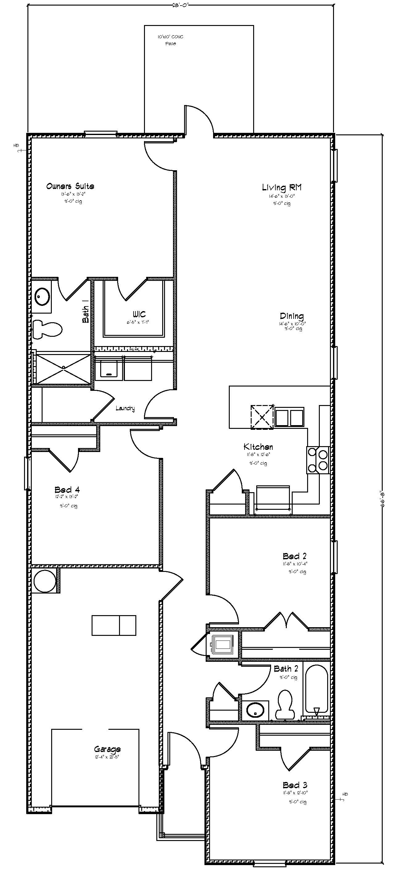
Welcome to the Camilla, a charming cottage-style floor plan nestled in the desirable Magnolia Pines community of Foley, Alabama. With 4 spacious bedrooms, 2 modern bathrooms, and 1,504 square feet of comfortable living space, this beautifully designed home is perfect for those who appreciate both style and practicality. Plus, the addition of a brand-new one-car garage adds convenience and storage to the home.
The Camilla offers an inviting open-concept layout that effortlessly blends the kitchen, dining, and living areas, making it ideal for both everyday living and entertaining. The well-appointed kitchen is the heart of the home, offering a thoughtful design that overlooks the dining area and the cozy great room. Whether you're preparing a family meal or enjoying a quiet evening at home, this space makes it easy to stay connected with loved ones. Designed with privacy in mind, the Camilla features a split bedroom plan. The tranquil primary bedroom is a true retreat, complete with an ensuite bath and a generously sized walk-in closet, creating a peaceful escape at the end of the day. The second and third bedrooms are thoughtfully located on the opposite side of the home, separated by a full bathroom and a convenient linen closet. The fourth bedroom, ideal for guests or a home office, is located across from the second bedroom and the kitchen, offering easy access and flexibility. This home is also equipped with a convenient laundry room, strategically placed just past the fourth bedroom and directly across from the kitchen. This layout makes daily chores a breeze and ensures that everything you need is close at hand. The Camilla comes fully equipped with our Smart Home Connect Technology System, featuring a video doorbell, keyless entry door lock, programmable thermostat, a touchscreen control device, and smart light switches—all designed to make your home more secure and efficient. In addition, the Camilla offers peace of mind with a one-year builder warranty and a 10-year structural warranty, ensuring long-term reliability. Built to Gold FORTIFIED Home™ certification standards, this home is designed to be stronger and more durable, potentially offering savings on your homeowner’s insurance (ask a Sales Representative for details). Don’t miss out on the opportunity to own this thoughtfully designed home in Magnolia Pines. Schedule your tour of the Camilla today and see why this cozy yet spacious floor plan is the perfect place to call home!
Read more about this plan
Request information
Facebook LinkedIn Email