About this home
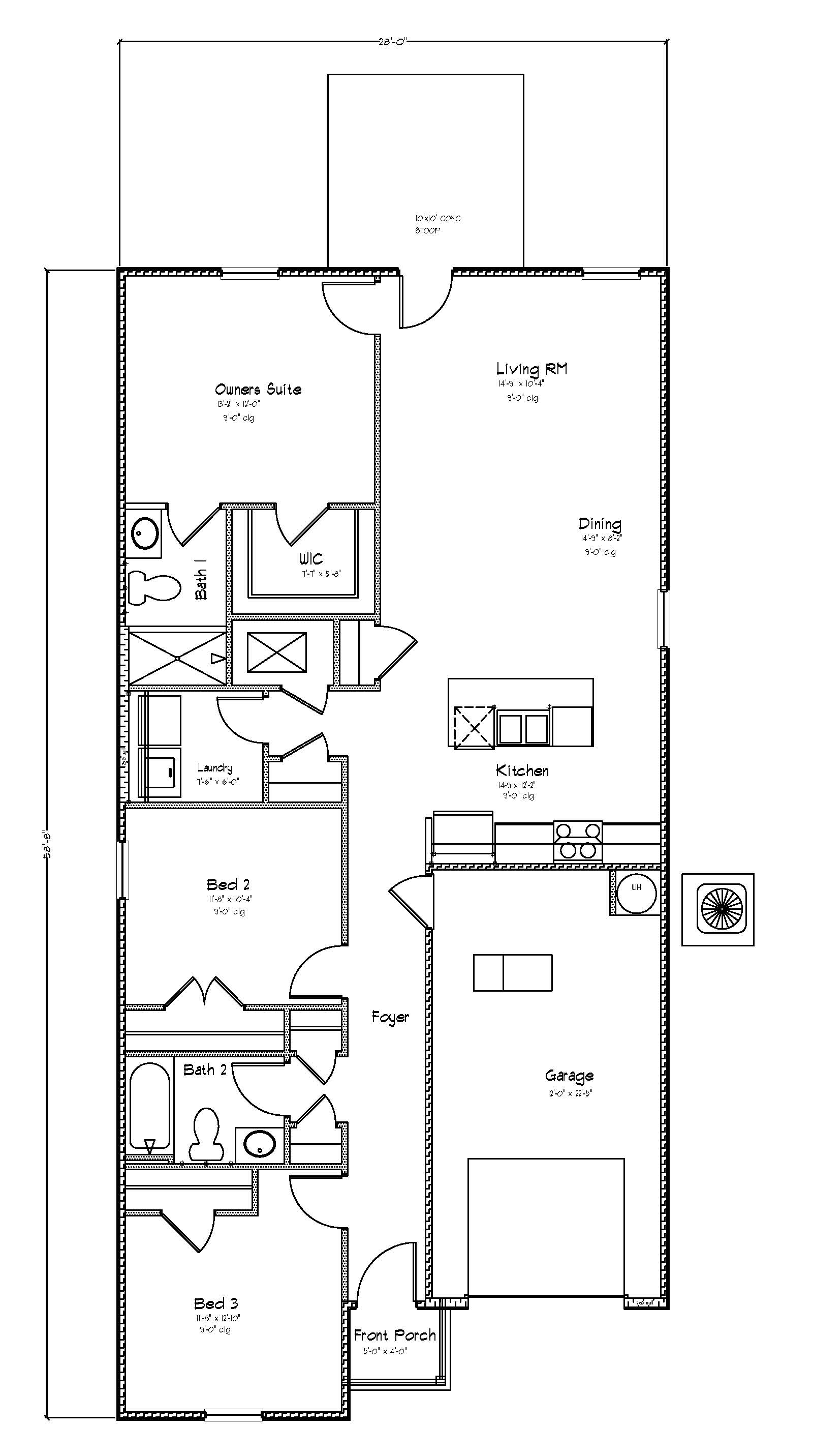
Welcome to 13742 Logan Place, a charming single-story new home in our Magnolia Pines community located in Foley, Alabama. Perfectly situated in the heart of the community, this stunning home offers an ideal blend of convenience and tranquility. Nestled against a common space buffer, it ensures an added layer of privacy, creating a serene and peaceful retreat. With seamless access to community entry points and nearby roadways, you'll enjoy effortless connectivity to all the essentials while still being tucked away in a quiet, scenic setting. Experience the best of both worlds in this exceptional home. Introducing the Delilah, a charming one-story home that effortlessly combines style and practicality, located in the highly desirable Magnolia Pines community in Foley, Alabama. With 3 spacious bedrooms, 2 bathrooms, and 1,281 square feet of thoughtfully designed living space, this home provides a comfortable and functional layout that suits modern lifestyles. Choose from a variety of beautiful exterior options to make the Delilah uniquely yours and enhance your curb appeal.
As you step inside, you’ll find two generously sized bedrooms and a full bathroom, conveniently situated between them. The one-car garage is easily accessible from this area, providing added convenience. Continuing through the home, you’ll discover the heart of the house—a spacious kitchen with a central island, perfect for meal prep, casual dining, or entertaining. The kitchen flows seamlessly into the dining area and living room, creating an open-concept space designed for both everyday living and hosting gatherings. Large windows in the living room allow natural light to pour in and open up to the backyard, offering a welcoming environment for relaxation and socializing. At the back of the home, the private owner’s suite serves as a peaceful retreat, featuring a generously sized bedroom, an ensuite bathroom, and a spacious walk-in closet—providing the perfect space to unwind after a busy day. Equipped with Smart Home Connect Technology, the Delilah offers added convenience, including a video doorbell, keyless entry, programmable thermostat, touchscreen control device, smart light switches, and more. Built to Gold FORTIFIED Home™ certification standards, this home may help lower your homeowner’s insurance (ask your Sales Representative for details). Additionally, with a one-year builder warranty and a 10-year structural warranty, you can enjoy peace of mind in your new home. Contact us today to schedule a tour and discover why the Delilah is the perfect fit for your lifestyle at Magnolia Pines!
Read more about this available home
Facebook LinkedIn Email