About this floor plan
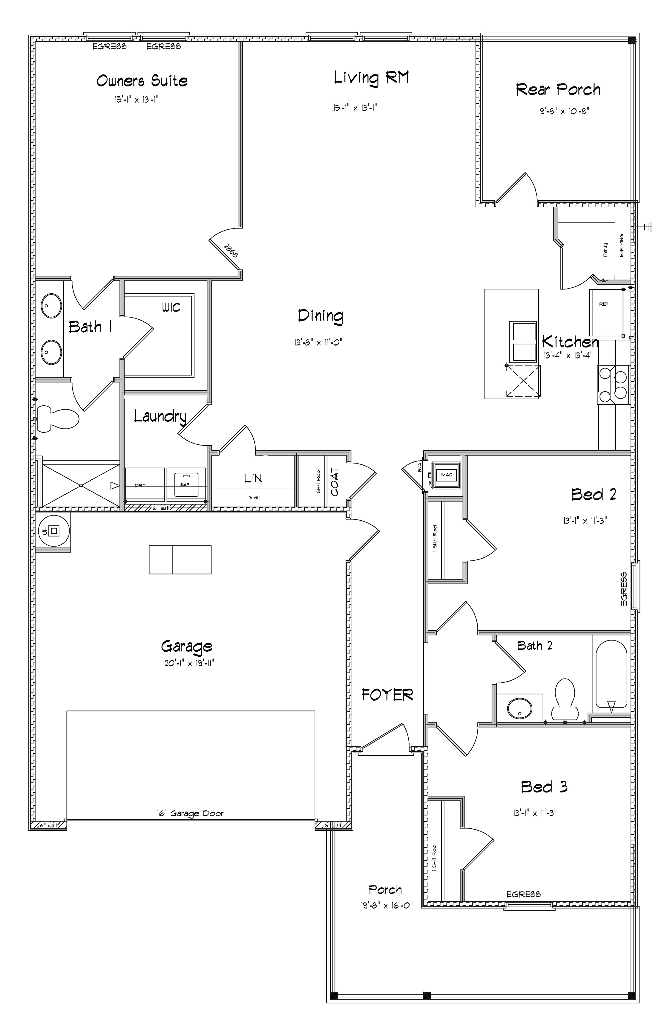
Come visit the Kelly, an exceptional one-story floorplan nestled in the desirable Tealwood Estates community in Foley, Alabama. Offering 9-foot ceilings and three distinctive exterior options that are sure to impress, this thoughtfully crafted 3-bedroom, 2-bathroom home with 2-car garage spans 1,510 square feet. As you approach, you're welcomed by a charming front porch, adding both curb appeal and an inviting atmosphere. Inside, the foyer leads you past two generously sized bedrooms that share a convenient Jack-and-Jill bathroom, offering privacy and comfort to its occupants.
Beyond the foyer, the heart of the home unfolds in the expansive open concept living area. On one side, the kitchen flows effortlessly into the dining area, creating the perfect space for family meals and entertaining guests. The kitchen is both functional and beautiful, with abundant counter space, a peninsula island, granite countertops, modern stainless-steel appliances, and a layout designed to make meal prep a breeze. It opens into the spacious living room, creating a harmonious flow throughout the home. This space provides access to the rear porch and private owner’s suite, tucked away at the back of the home for ultimate peace and privacy. The vast primary suite features an attached bathroom designed for relaxation. The ensuite includes a double vanity, a large walk-in closet, and a private water closet for added convenience and privacy. The home also includes a well-positioned laundry room just past the foyer, and a linen closet for added storage. A coat closet across from the foyer ensures additional storage for everyday essentials. Equipped with our Smart Home Connect technology package, the Kelly gives you the latest security and in-home convenience. Plus, with a one-year builder warranty and a 10-year structural warranty, you can move in with peace of mind knowing your home is built to last. Built to Gold FORTIFIED Home™ standards, this home offers enhanced durability and may even save you on homeowner’s insurance (ask Sales Representative for more details). Don’t miss the chance to make the Kelly your new home at Tealwood Estates. Contact us today to schedule a virtual or in-person tour and start your journey to homeownership!
Read more about this plan
Facebook LinkedIn Email