About this floor plan
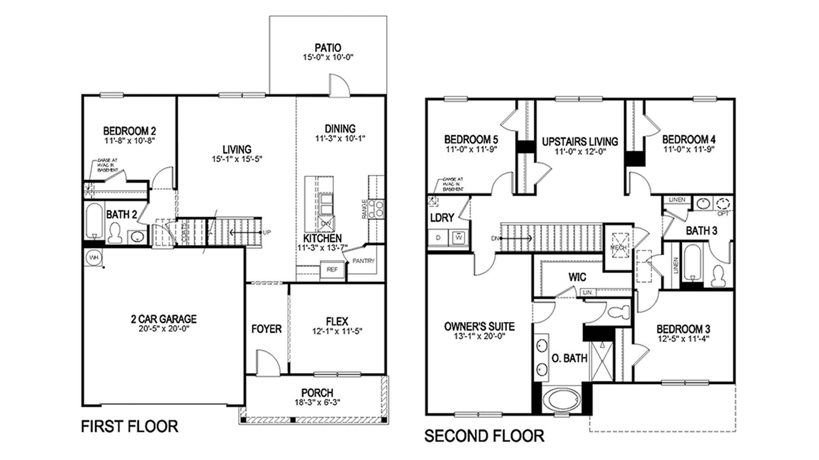
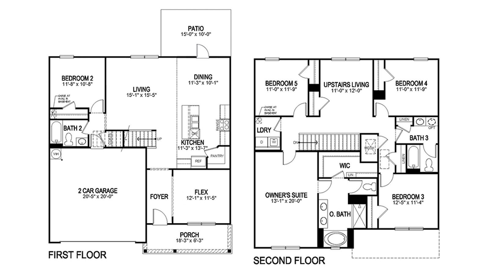
Welcome to the Carol Plan, a customer favorite of our new home communities in central, Alabama. Just over 2,500 square feet, this beautiful two- story home offers 5-bedrooms with 3-bathrooms, and a 2-car garage with a gorgeous open floor layout. The gourmet kitchen has an oversized island for extra seating and a large pantry, and it opens to the dining area and a spacious living room. A bedroom with a full bathroom completes the main level. Bedroom One is on the second level and offers a luxurious bath with a soaking garden tub and separate shower, private bathroom, double vanities with marble counters and a large walk-in closet. There are 3 additional bedrooms, a full bathroom, a walk-in laundry room, and a loft-style living room on the second level. Quality materials and workmanship throughout, with superior attention to detail, plus a one-year builder's warranty. As a most popular favorite, this plan is ideal for any size family.
In addition, each home comes with a one-year builder's warranty to provide extra peace of mind. It's worth noting that our smart home technology package is also part of the deal. The included Smart Home Technology Package is designed for easy use and offers unparalleled convenience, enabling you to effortlessly control various key features with just a simple touch. Some of the highlighted conveniences of this package comprise lighting automation, an IQ panel, a video doorbell, keyless front door entry, and the ability to manage the temperature from the comfort of your phone. Call to schedule your personal guided tour of the Carol today!
Read more about this plan
Facebook LinkedIn Email