About this floor plan
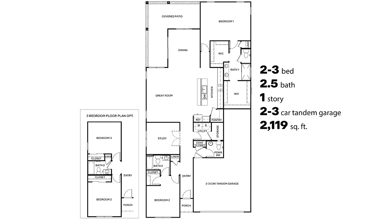
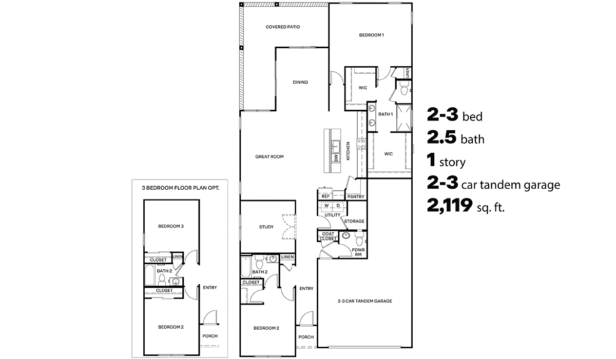
Introducing the Charleston — a beautifully designed new floor plan at Solterra by D.R. Horton in Green Valley. Offering 2,119 square feet of thoughtfully planned living space, the Charleston blends modern convenience with timeless elegance, creating a home that feels both refined and welcoming. Step through the inviting entryway and into an open-concept layout designed to maximize every square foot. The expansive great room serves as the heart of the home, flowing seamlessly into the dining area and kitchen—ideal for both everyday living and entertaining. The kitchen features a spacious center island, quartz countertops, Shaker-style cabinetry, and a dedicated pantry, delivering a clean, modern aesthetic with ample storage for all your culinary needs.
The Charleston is available in two- and three-bedroom configurations, offering flexibility to suit a variety of lifestyles. The primary suite is thoughtfully positioned at the rear of the home for added privacy and includes two walk-in closets and a well-appointed en-suite bathroom. Near the front of the home, a guest bedroom and study provide comfortable accommodations for visitors or a quiet space to work from home. The guest bedroom features its own en-suite bathroom and walk-in closet, ensuring comfort and convenience. Designed with practicality in mind, the Charleston includes a utility room conveniently located near the kitchen and garage, providing easy access to laundry and additional storage. A covered back patio extends the living space outdoors—perfect for enjoying Green Valley’s beautiful year-round weather. Homes at Solterra showcase elegant, modern interiors paired with distinctive exterior finishes, including Spanish lace stucco, landscaped front yards with auto drip irrigation, and fully fenced backyards. Covered front porches and back patios create inviting spaces to relax and take in Green Valley’s breathtaking sunsets. Inside, D.R. Horton’s Home is Connected® Smart Home package enhances everyday living with a smart thermostat, video doorbell, keyless entry, and a Wi-Fi–enabled garage door opener. Outdoor enthusiasts will appreciate the close proximity to scenic neighborhood parks, Colossal Cave Mountain Park, and an abundance of walking and biking trails that weave throughout Green Valley—making the Charleston a perfect blend of comfort, style, and outdoor living.
Read more about this plan
Facebook LinkedIn Email