About this floor plan
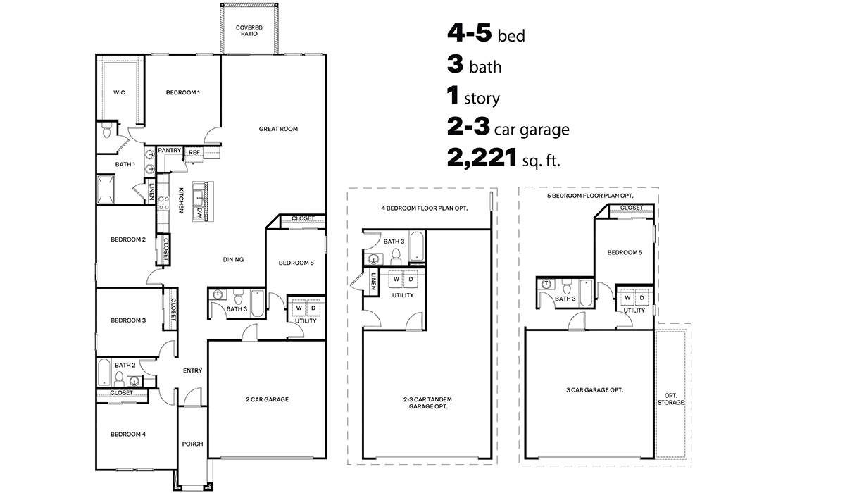
The Dalea is a standout single-story brand-new floor plan at Entrada Del Toro, a master-planned community of Rancho Sahuarita. Offering 2,221 square feet of living space, this home is designed to accommodate modern living with comfort and style. The Dalea provides a spacious layout with plenty of options such as four to five bedrooms and three full bathrooms, making it an ideal choice for families of all sizes. As you step into the charming front porch, you are greeted by a spacious and open floor plan that seamlessly connects the main living areas. The great room serves as the central hub of the home, flowing into a dining area and modern kitchen area. The kitchen features a large central island, quartz countertops, Shaker-style cabinetry, walk-in pantry, and ample storage for all your culinary needs.
The primary suite, located at the rear of the home, provides a private retreat with a spacious bedroom, a large walk-in closet, and an en-suite bathroom and a walk-in shower. The Dalea floor plan also includes a utility room and two-car garage with the option of three-car tandem garage. Step outside to the covered patio, perfect for enjoying the Arizona climate. Whether you’re hosting a summer barbecue or simply unwinding in the evening, this outdoor space is a valuable addition to the home. Our homes at Entrada Del Toro are designed with the future in mind. Each home features a light lace stucco exterior, landscaped front yards with auto drip irrigation, and large backyards that are fully fenced and ready for your personal touch. Inside, the Home is Connected® Smart Home package brings modern convenience to your fingertips with a smart thermostat, video doorbell, keyless entry, and a Wi-Fi® enabled garage door opener. Residents of Entrada Del Toro will enjoy access to Rancho Sahuarita’s extensive amenity offerings, which include a full-service fitness center, multiple large swimming pools, pickle-ball courts, splash pads, playgrounds, and sizable parks and recreational spaces designed for all ages and lifestyles. In addition, homeowners will have exclusive access to the brand-new Entrada Del Toro Community Center, scheduled to open Spring 2026, further enhancing the neighborhood experience with modern gathering and recreational spaces close to home.
Read more about this plan
Facebook LinkedIn Email