About this floor plan
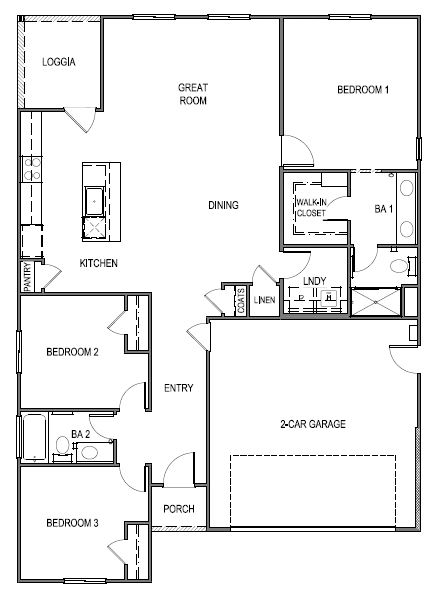
Discover your dream home at Plan 1501, where modern comfort meets style in every detail. This single-story, 1,501 sq. ft. residence boasts a thoughtful layout featuring 3 bedrooms, 2 bathrooms, and a 2-car garage, ideal for those seeking a spacious retreat. Step into a gourmet kitchen equipped with luxurious Whirlpool appliances, including a 30" stainless steel freestanding electric range, microwave/hood combo, and built-in dishwasher. Elegant quartz countertops throughout, complemented by full-overlay shaker style cabinets preselected by builder in either white or gray, enhance the kitchen's functionality and aesthetic appeal. Unwind in sophisticated bathrooms showcasing chrome fixtures, elongated toilets, and quartz countertops matching those in the kitchen. Bath 1 offers a chrome-framed shower enclosure with fiberglass surround, while Bath 2 features a fiberglass tub/shower combo with a shower rod, ensuring both convenience and comfort.
Enjoy the seamless blend of technology and efficiency with Deako switches, USB charging outlets, and energy-efficient LED lighting throughout the home. Stay connected with WiFi-enabled garage door opener and smart home features, including a control panel and doorbell for added security and convenience. Experience year-round comfort with a Honeywell programmable thermostat and electric heat pump water heater, while stylish touches like Mohawk carpet, luxury vinyl tile flooring, and polished chrome interior hardware by Kwikset elevate every room. Outside, appreciate the durable composition shingles roofing and solar-ready design, highlighting the home’s commitment to sustainability. Plan 1501 is designed for modern living, offering a blend of quality craftsmanship, contemporary design, and functional elegance. Explore the possibilities and make this home yours today.
Read more about this plan
Facebook LinkedIn Email