Plan 2754 Floor Plan
Call for Information
| Tradition SeriesSM
4 Bed |
3 Bath |
3 Garage |
1 Story
2,754 Sq. Ft.
About this floor plan
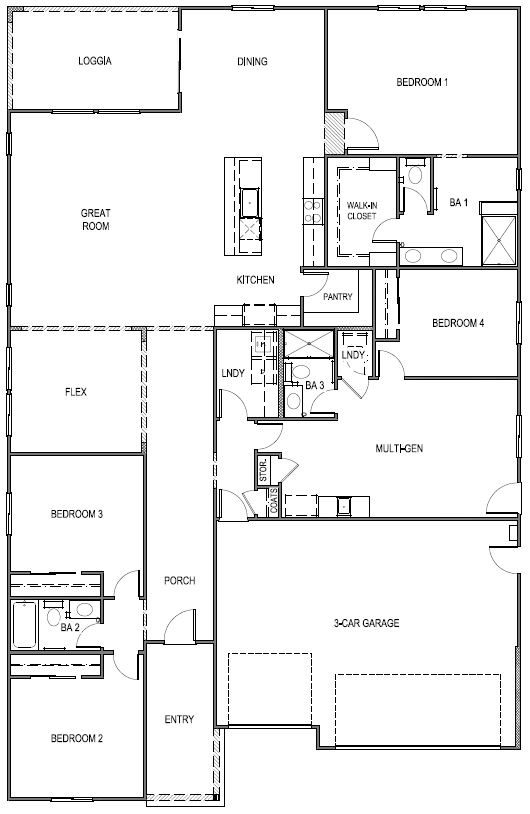
Explore Plan 2754, an impressive 4-bedroom, 3-bathroom home with a three-car garage spanning 2,754 sq. ft. across a single story. This plan features D.R Horton's MultiGEN ® - a private fully functional attached suite connected to the main residence "two homes under one roof". The separate suite can be used to adapt to your household's changing needs. Dedicated home office or a long-term guest suite. Upon entering you will find 2 of the 4 bedrooms and a full bathroom. The hallway leads you into an expansive great room. Just off the kitchen is the dining area perfect for shared meals and special occasions. At the heart of the home, the modern kitchen boasts a large island. In the kitchen you will find quartz countertops, stainless-steel appliances and elegant Shaker-style cabinets. The walk-in pantry ensures ample storage for all your culinary essentials. Just off the great room, the spacious primary bedroom with the on-suite bathroom with features like quartz counter tops, dual sinks and a walk-in shower.
The home is meticulously detailed with Mohawk carpeting and plank flooring. Technology and innovation are seamlessly integrated with smart home features, including a control panel, doorbell, and lamp module, enhancing convenience and security. Plan 2754 exemplifies contemporary living at its finest. Experience the perfect blend of luxury, flexibility, and innovation in your new home.
Read more about this plan
{"InvalidUserInputMessage":"Please check your data entered again","ServerErrorMessage":"We couldn't share this page via email, try again later","SuccessResultCode":0,"InvalidUserInputResultCode":1,"ServerErrorResultCode":2,"HostName":"http://www.drhorton.com","DefaultPageUrl":"https://www.drhorton.com/california/sacramento/redding/magnolia-at-shastina-ranch/floor-plans/2754","DefaultModalHeader":"Share this property."}
Facebook LinkedIn Email