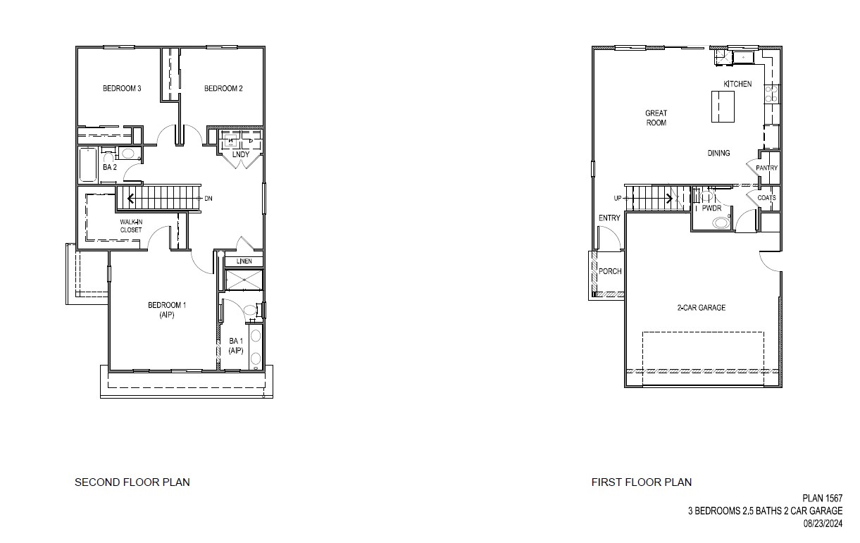
Plan 1567 Floor Plan
starting at $518,990
| Tradition SeriesSM
3 Bed |
2.5 Bath |
2 Garage |
2 Story
1,567 Sq. Ft.
About this floor plan
Discover the 1567 Plan, an inviting choice for new home buyers seeking comfort and modern amenities. This approximately 1,567 square foot home features three bedrooms and 2.5 bathrooms, ensuring convenience and space for all. The first floor of this home invites you through the entryway, which opens seamlessly into the great room. At the heart of the home, the modern kitchen equipped with quartz countertops, stainless-steel appliances and elegant Shaker style cabinets. Just off the kitchen is the dining room, which is perfect for shared meals and special occasions. Additionally, the walk-in pantry ensures ample storage for all your culinary essentials. Also, on the first floor a coat closet and half bath.
Traveling upstairs you will find three spacious bedrooms and a full bathroom. The primary bedroom suite boasts a spa inspired bathroom with quartz countertops, dual sinks and a generously sized shower. Conveniently situated on the second floor is the laundry room and linen closet. The home is meticulously detailed with Mohawk carpeting and plank flooring. Technology and innovation are seamlessly integrated with smart home features, including a control panel, doorbell, and lamp module, enhancing convenience and security. Discover the joy of modern living in the 1567 Plan, designed for comfort, functionality, and style in every detail.
Read more about this plan
{"InvalidUserInputMessage":"Please check your data entered again","ServerErrorMessage":"We couldn't share this page via email, try again later","SuccessResultCode":0,"InvalidUserInputResultCode":1,"ServerErrorResultCode":2,"HostName":"http://www.drhorton.com","DefaultPageUrl":"https://www.drhorton.com/california/sacramento/roseville/dragonfly-ii-at-winding-creek/floor-plans/1567","DefaultModalHeader":"Share this property."}
Facebook LinkedIn Email