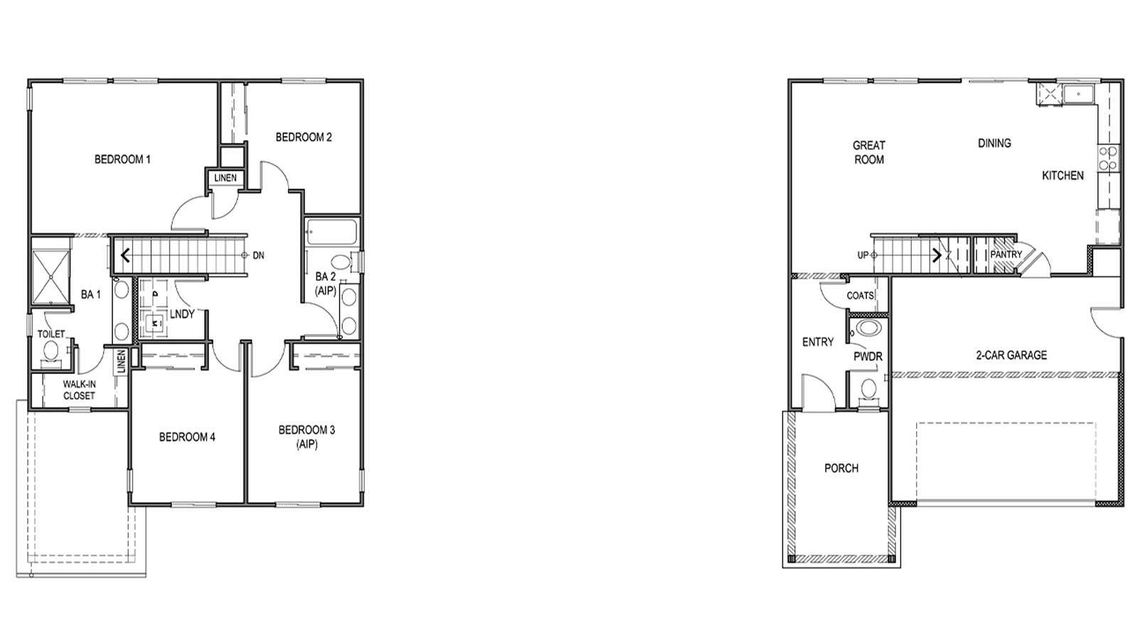
Plan 1678 Floor Plan
starting at $560,990
|Express Series®
4 Bed |
2.5 Bath |
2 Garage |
2 Story
1,678 Sq. Ft.
About this floor plan
Welcome to Plan 1678, an elegant 2-story home spanning 1,678 sq. ft. This home features 4 bedrooms, 2.5 baths, and a 2-car garage.
The kitchen boasts Whirlpool appliances, granite countertops, and white Shaker style cabinets with 30" uppers. Bathrooms are appointed with chrome fixtures, elongated toilets, and granite countertops, offering both style and durability. Enjoy the convenience of Deako switches, USB charging outlets, and GFCI nightlight combo outlets throughout.
This home includes Mohawk carpet and MSI vinyl plank flooring, plus pre-wired ceiling fans for added comfort. With a WiFi-enabled garage door opener and solar.
Plan 1678 epitomizes modern living with a covered porch, downstairs powder room, upstairs laundry room, walk-in closet, and dual sinks in two bathrooms, providing ample space and comfort for everyone.
Facebook LinkedIn Email