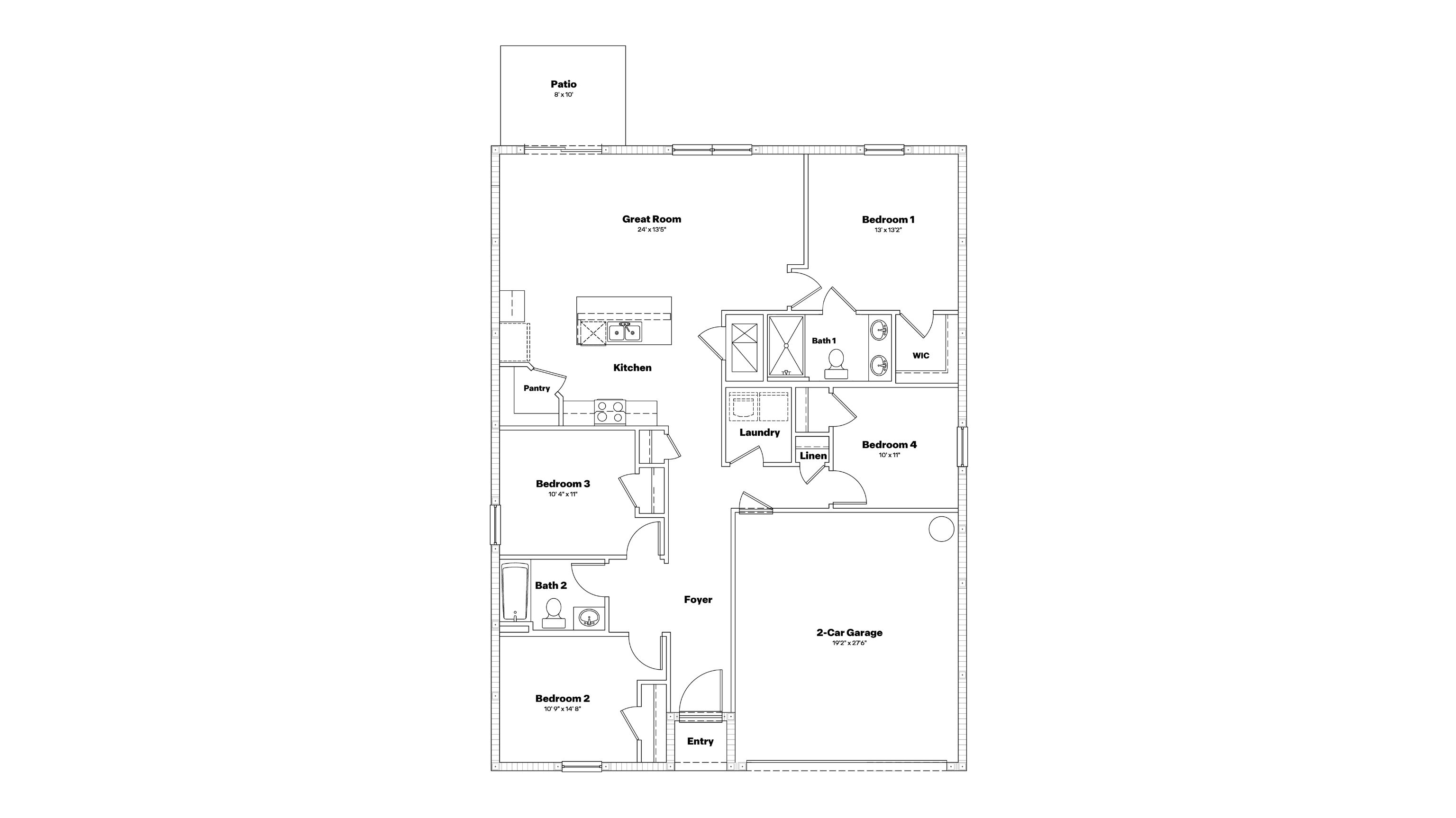
Freeport II Floor Plan
Call for Information
| Express Series®
4 Bed |
2 Bath |
2 Garage |
1 Story
1,498 Sq. Ft.
About this floor plan
The Freeport II offers everything you need in a single-story layout that lives larger than its square footage. With four bedrooms, there’s flexibility for whatever life brings—guest space, a home office, or that creative studio you’ve always wanted. Two full bathrooms with sleek fixtures and easy-care quartz countertops provide both comfort and style. At the heart of the home, the open-concept kitchen shines with a central island, walk-in pantry, and a seamless connection to the spacious great room—perfect for hosting friends or enjoying laid-back evenings in. Tucked privately at the back, the primary suite offers a relaxing retreat with a large walk-in closet and a well-appointed ensuite bath. Step outside to the patio, perfect for weekend grilling or winding down with your favorite book and a breeze.
Designed with energy efficiency in mind, the Freeport II features Low-E windows, a high-efficiency HVAC system, and storm-ready construction for added peace of mind. Whether you’re starting out, moving up, or simplifying, the Freeport II blends smart design with stylish finishes—offering comfort, value, and room for everyone.
Read more about this plan
{"InvalidUserInputMessage":"Please check your data entered again","ServerErrorMessage":"We couldn't share this page via email, try again later","SuccessResultCode":0,"InvalidUserInputResultCode":1,"ServerErrorResultCode":2,"HostName":"http://www.drhorton.com","DefaultPageUrl":"https://www.drhorton.com/florida/manatee-sarasota/bradenton/glen-creek/floor-plans/e407","DefaultModalHeader":"Share this property."}
Facebook LinkedIn Email