About this floor plan
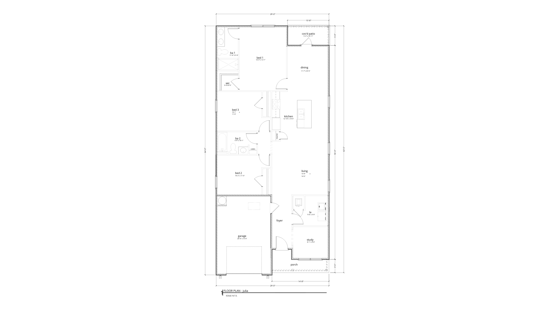
Welcome to the Julia Plan, at Waterside at East Bay, our new home community in Gulf Breeze, Florida. Just under 1,500 square feet, this beautiful single- story home offers 3-bedrooms with 2-bathrooms, a 1-car garage, and a seamless open layout. When entering the home, directly off of the foyer you’ll find easy access to the study which could be utilized as an office space, play area or additional sitting room. The laundry room is located just passed the study. Continuing through the entryway you will find a large open concept living area. The great room blends seamlessly into the kitchen, dining space, and living room. The kitchen offers plenty of space and an island for additional counter space. The kitchen features Quartz countertops and stainless-steel appliances, including a stove, dishwasher, and microwave hood combo would make any home chef's day. Directly off of the kitchen you will enjoy sharing a meal in your cozy dining space. The covered patio is at the rear of the home with access to the dining room.
Moving through the open concept main living area, you’ll find the primary bedroom, guest bedroom one and two as well as the guest bathroom. The primary bedroom is a spacious and relaxing space that includes the attached primary bathroom. Between the double vanity and walk-in shower, your primary bedroom and bathroom can become a haven of relaxation. In addition to all the features and amenities our Julia Plan offers, each Delilah is built with our Smart Home technology package, designed to bring the ease and convenience of life right to your fingertips. As a most popular favorite, this plan is ideal for any size family. Call to schedule your tour of the Julia plan at Waterside at East Bay today!
Read more about this plan
Facebook LinkedIn Email