About this home
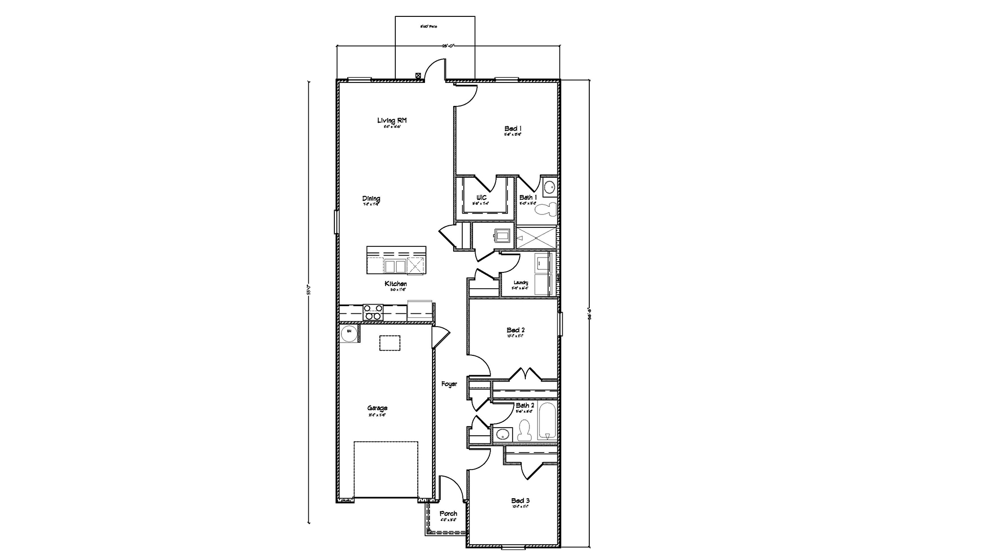
Welcome to 2236 Shenandoah Boulevard at Sunny Hills in Chipley, Florida. This pre-construction homesite offers the opportunity to secure new construction prior to groundbreaking. This property will be developed with the Poppy floorplan and built to current design standards and specifications. Buyers may have the ability to personalize select finishes depending on the stage of construction. Estimated completion timelines and build details available upon request. The Poppy is a thoughtfully designed single-story home featuring three bedrooms and two bathrooms, offering an ideal layout for modern living. From the moment you step inside, a long, welcoming foyer creates a sense of privacy and flow, leading guests seamlessly into the heart of the home.
At the center of the Poppy is a bright open-concept living area that connects the kitchen, dining, and living spaces—perfect for everyday living and entertaining. The kitchen features a spacious island, ideal for casual meals, meal prep, or gathering with family and friends. A rear kitchen counter with a built-in stove and overhead microwave keeps the workspace efficient while maintaining a clean, streamlined look. Just off the kitchen, the laundry room is conveniently located, providing easy access without interrupting the main living areas. Two secondary bedrooms are positioned near a shared full bathroom, making them perfect for guests, children, or a home office. Tucked away for privacy, the primary suite offers a relaxing retreat at the end of the day. The spacious bedroom includes walk-in closets and an ensuite bathroom designed for comfort, featuring a walk-in shower for a modern, low-maintenance lifestyle. With its functional layout, open design, and smart use of space, the Poppy floor plan is ideal for homeowners seeking a comfortable, stylish, and efficient new construction home. Contact a D.R. Horton Sales Representative for more information about this floorplan
Read more about this available home
Facebook LinkedIn Email