About this floor plan
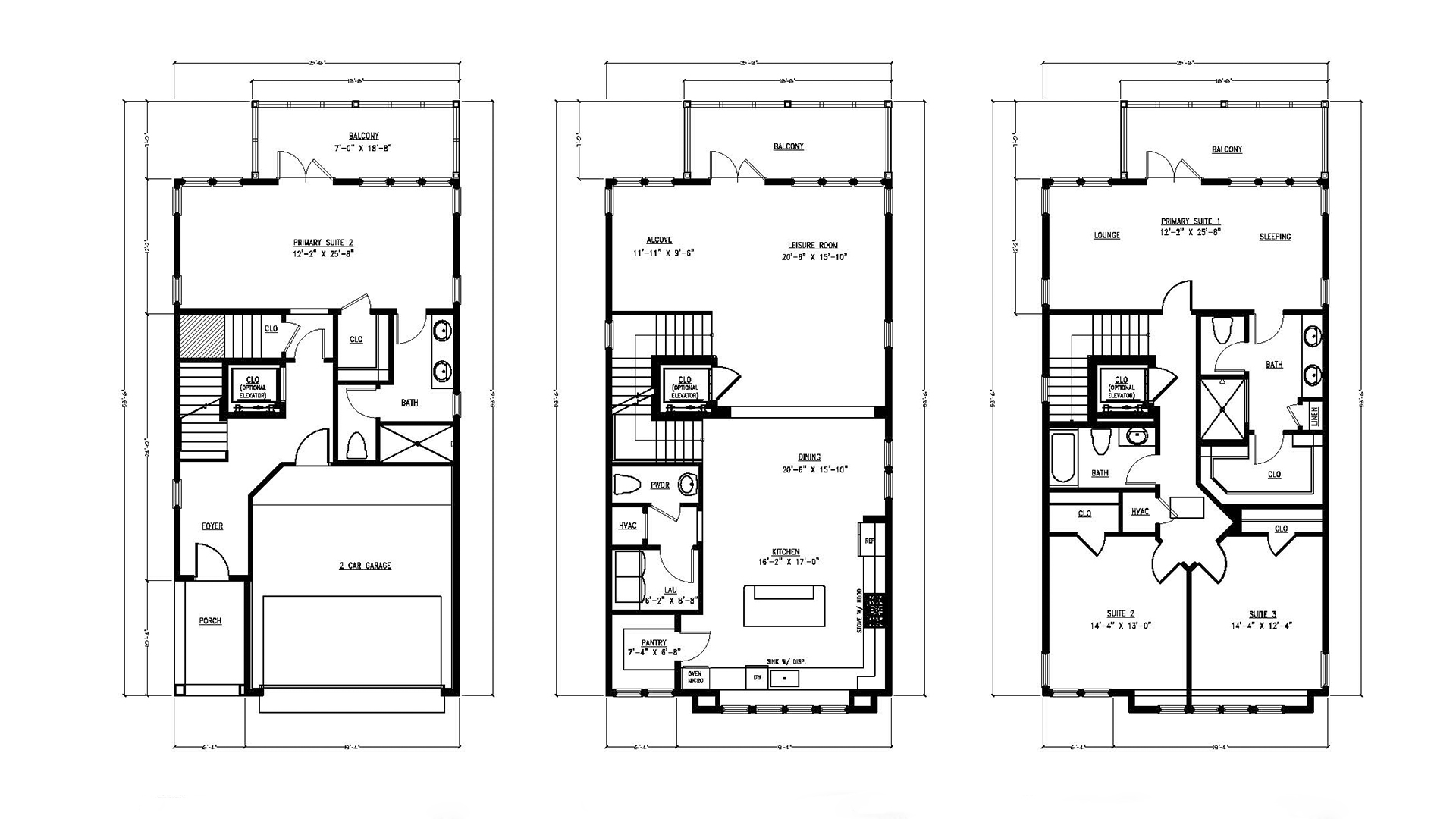
Welcome to the Antigua, a new coastal luxury home at Parkside located in Santa Rosa Beach, Florida. Discover refined coastal luxury in this beautifully designed three-story home featuring four bedrooms, four bathrooms, and elevated living spaces on every level. Thoughtfully crafted for comfort, style, and functionality, this coastal residence offers a balcony on each floor, bringing in natural light, fresh ocean breezes, and a true indoor–outdoor lifestyle. The main level features the first of two primary bedroom suites, complete with a spacious walk-in closet and a large, spa-inspired shower. This level’s private balcony creates the perfect retreat for relaxing mornings or peaceful evenings.
The second level serves as the heart of the home, offering an open and inviting layout ideal for entertaining. A gourmet kitchen with premium finishes flows seamlessly into the living and dining areas, creating a bright and airy central gathering space. This level also includes a powder bath and a dedicated laundry room, along with its own balcony to enhance the coastal living experience. On the third level, you’ll find the second primary bedroom suite, featuring a generous walk-in closet, an oversized luxury shower, and access to the top-floor balcony with elevated coastal views. Two additional guest bedrooms share a well-appointed bathroom, making this floor perfect for family, visitors, or flexible lifestyle needs. Designed for those seeking the ultimate coastal luxury lifestyle, this elegant three-story home offers exceptional privacy, modern design, and versatile living spaces—all complemented by balconies on every level and thoughtful details throughout. For more information about this floor plan, contact a D.R. Horton Sales Representative.
Read more about this plan
Facebook LinkedIn Email