The Mckenzie Floor Plan
Call for Information
| Tradition SeriesSM
5 Bed |
3 Bath |
2 Garage |
1 Story
3,044 Sq. Ft.
About this floor plan
Excited to talk new homes?
Text with us
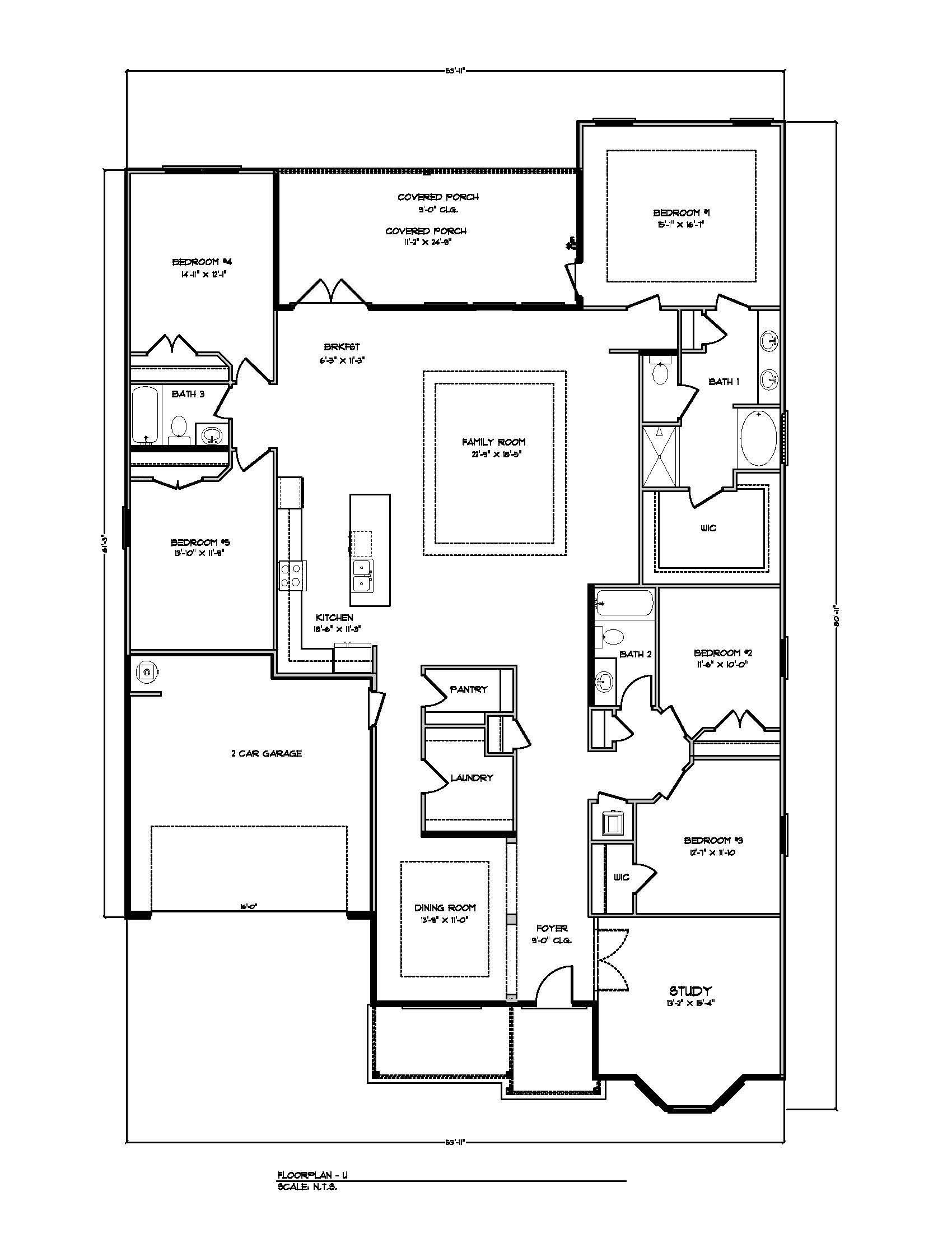
Welcome to the McKenzie, a new home floor plan in Santa Rosa Beach Florida. The Mckenzie features a sprawling 3,061 square feet with five bedrooms and three full bathrooms. From the moment you enter this floor plan, you are met with spacious rooms and elegant features throughout the home. Off the front entry hall, is an appointed formal dining room with windows that flood this space with natural light. A large study is just across the hall that makes a perfect space for a library, home office, or formal sitting room. Continue through the foyer to the grand living area that is open and a kitchen that features a center island and pantry. There is a dedicated hall that leads from the kitchen to the formal dining room for easy dinner service and clean up. The living area has a trey ceiling which elevates this area and gives the feel of high ceilings.
Off the living area you will find access to the primary bedroom that is tucked discreetly at the back of the home for privacy. The primary bedroom has trey ceilings and a spacious ensuite bathroom that holds the walk-in closet, a soak tub and separate shower. There are four additional bedrooms in a split bedroom layout with two off the kitchen and breakfast area and two along the front foyer. Each separated by two full bathrooms. If you are looking for a home that has space for hosting guests or family, the McKenzie combines comfort, luxury and functionality. Contact a D.R. Horton Sales Representative for more information on this floorplan.
Pictures are of similar McKenzie model home and not necessarily of subject property, including interior and exterior colors, options, and finishes. Buyer to verify all information during due diligence.
Read more about this plan
{"InvalidUserInputMessage":"Please check your data entered again","ServerErrorMessage":"We couldn't share this page via email, try again later","SuccessResultCode":0,"InvalidUserInputResultCode":1,"ServerErrorResultCode":2,"HostName":"http://www.drhorton.com","DefaultPageUrl":"https://www.drhorton.com/florida/panama-city/santa-rosa-beach/santa-rosa-beach-spot-lots/floor-plans/kenz","DefaultModalHeader":"Share this property."}
Facebook LinkedIn Email