Home for sale at 45 Bluebell Circle
Santa Rosa Beach , FL 32459
Tradition SeriesSM
5 Bed |
3 Bath |
2 Garage |
1 Story
About this home
Excited to talk new homes?
Text with us
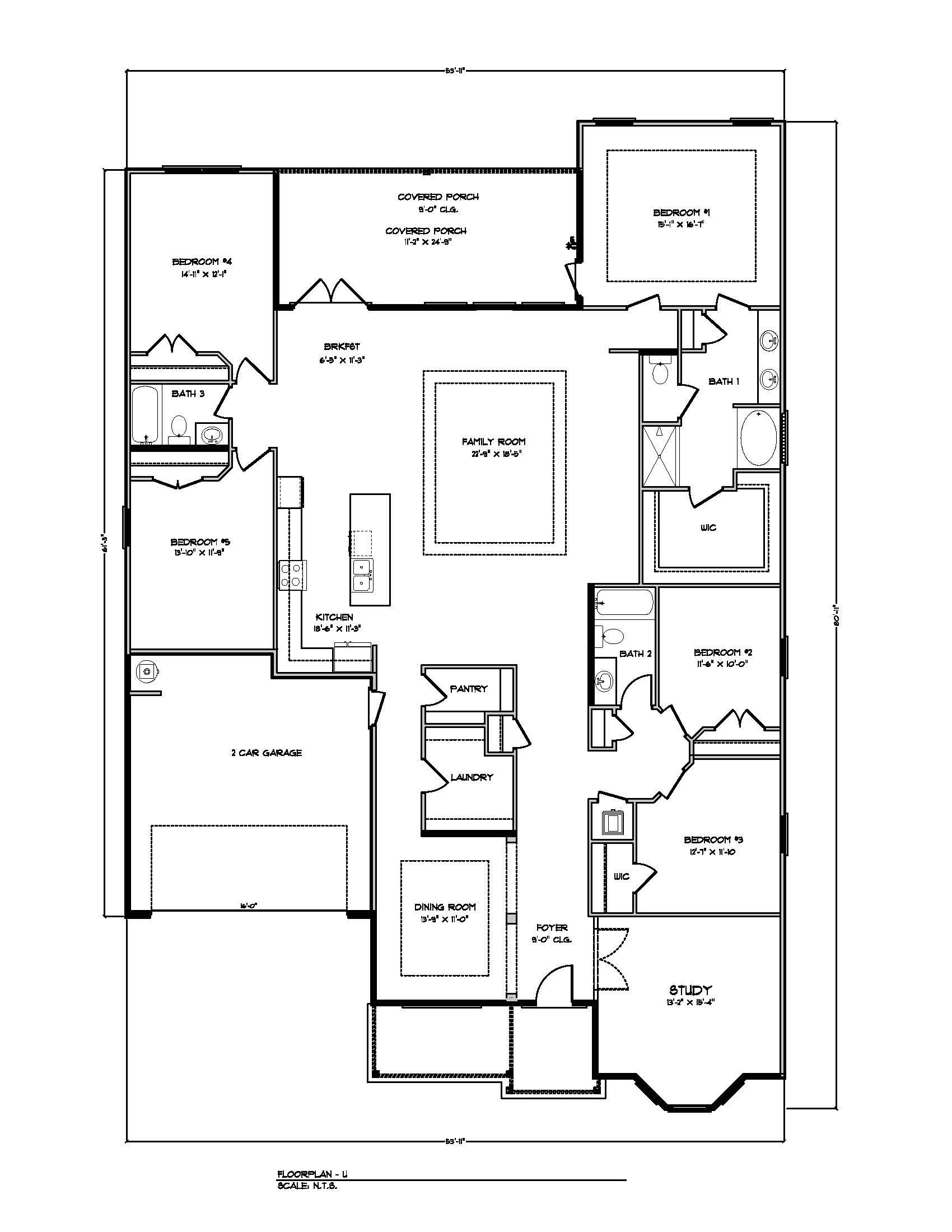
Welcome to 45 Bluebell Circle, a new home under construction in Santa Rosa Beach Florida. This home is located in the Bayou Pines area of Santa Rosa Beach and does not have an HOA. The Mckenzie features a sprawling 3,061 square feet with five bedrooms and three full bathrooms. From the moment you enter this floor plan, you are met with spacious rooms and elegant features throughout the home. Off the front entry hall, is an appointed formal dining room with windows that flood this space with natural light. A large study is just across the hall that makes a perfect space for a library, home office, or formal sitting room.
Continue through the foyer to the grand living area that is open and a kitchen that features a center island and pantry. There is a dedicated hall that leads from the kitchen to the formal dining room for easy dinner service and clean up. The living area has a trey ceiling which elevates this area and gives the feel of high ceilings. The main areas of this home include EVP flooring, and the kitchen has beautiful white cabinetry, quartz countertops and an appliance package that includes a stove, microwave and dishwasher. Off the living area you will find access to the primary bedroom that is tucked discreetly at the back of the home for privacy. The primary bedroom has trey ceilings and a spacious ensuite bathroom that holds the walk-in closet, a soak tub and separate shower. There are four additional bedrooms in a split bedroom layout with two off the kitchen and breakfast area and two along the front foyer. Each separated by two full bathrooms. If you are looking for a home that has space for hosting guests or family, the McKenzie combines comfort, luxury and functionality. Contact a D.R. Horton Sales Representative for more information on this floorplan.
Pictures are of similar McKenzie model home and not necessarily of subject property, including interior and exterior colors, options, and finishes. Buyer to verify all information during due diligence.
Read more about this available home
Request information
Request a tour
{"InvalidUserInputMessage":"Please check your data entered again","ServerErrorMessage":"We couldn't share this page via email, try again later","SuccessResultCode":0,"InvalidUserInputResultCode":1,"ServerErrorResultCode":2,"HostName":"http://www.drhorton.com","DefaultPageUrl":"https://www.drhorton.com/florida/panama-city/santa-rosa-beach/santa-rosa-beach-spot-lots/qmis/0045","DefaultModalHeader":"Share this property."}
Facebook LinkedIn Email