CLIFTON Plan
Express Series
® |
Call for Information
2 Bed |
2 Bath |
2 Garage |
1 Story
1,816 Sq. Ft.
About this floorplan
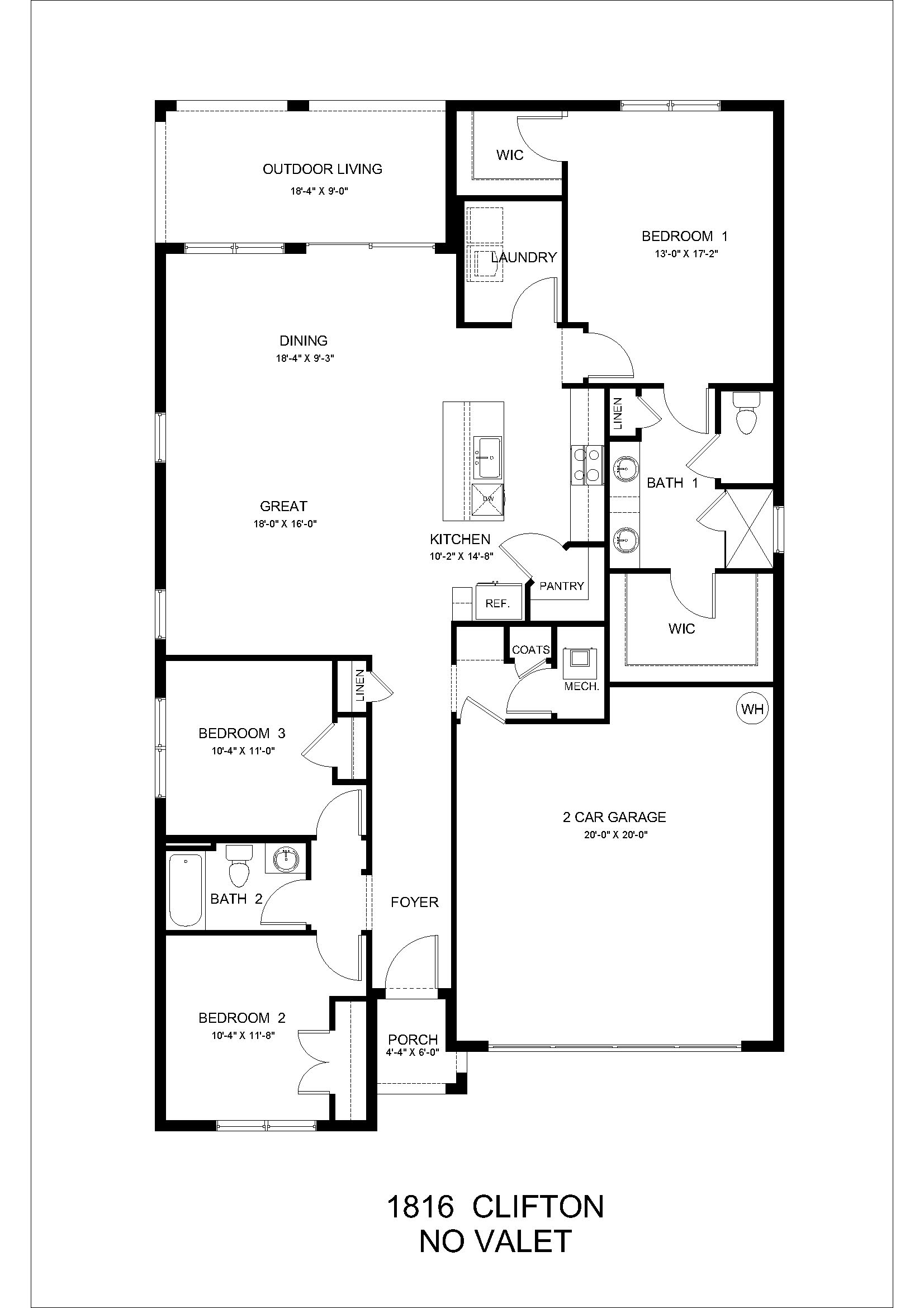
The Clifton is one of our most sought-after one-story home designs at Coral Lakes in Punta Gorda, FL. The Clifton is a one-story single-family home with two bedrooms, a den, two bathrooms, and an attached two-car garage. This 1,816 square foot home features a long foyer with a bedrooms and den on the side and leads to an inviting open-concept kitchen, great room, and dining area. A set of sliding glass doors allows ample lighting into the living area and lead out to a paved, covered lanai. The well-appointed kitchen has a convenient, walk-in corner pantry and provides ample cabinet and counter space with granite countertops, stainless steel appliances, and 42" upper cabinets with under cabinet lighting.
The primary bedroom, located at the back of the house for privacy, has an en suite bathroom with a double vanity and two large walk-in closets providing substantial space for storage. A guest bedroom and flex space are located opposite the primary bedroom at the front of the home. The flex space can be utilized as an office or cozy den. Schedule an appointment today to tour your new home.
Read more about this plan
Request information
{"InvalidUserInputMessage":"Please check your data entered again","ServerErrorMessage":"We couldn't share this page via email, try again later","SuccessResultCode":0,"InvalidUserInputResultCode":1,"ServerErrorResultCode":2,"HostName":"http://www.drhorton.com","DefaultPageUrl":"https://www.drhorton.com/florida/southwest-florida/punta-gorda/coral-lakes/floor-plans/a4cb","DefaultModalHeader":"Share this property."}
Facebook LinkedIn Email