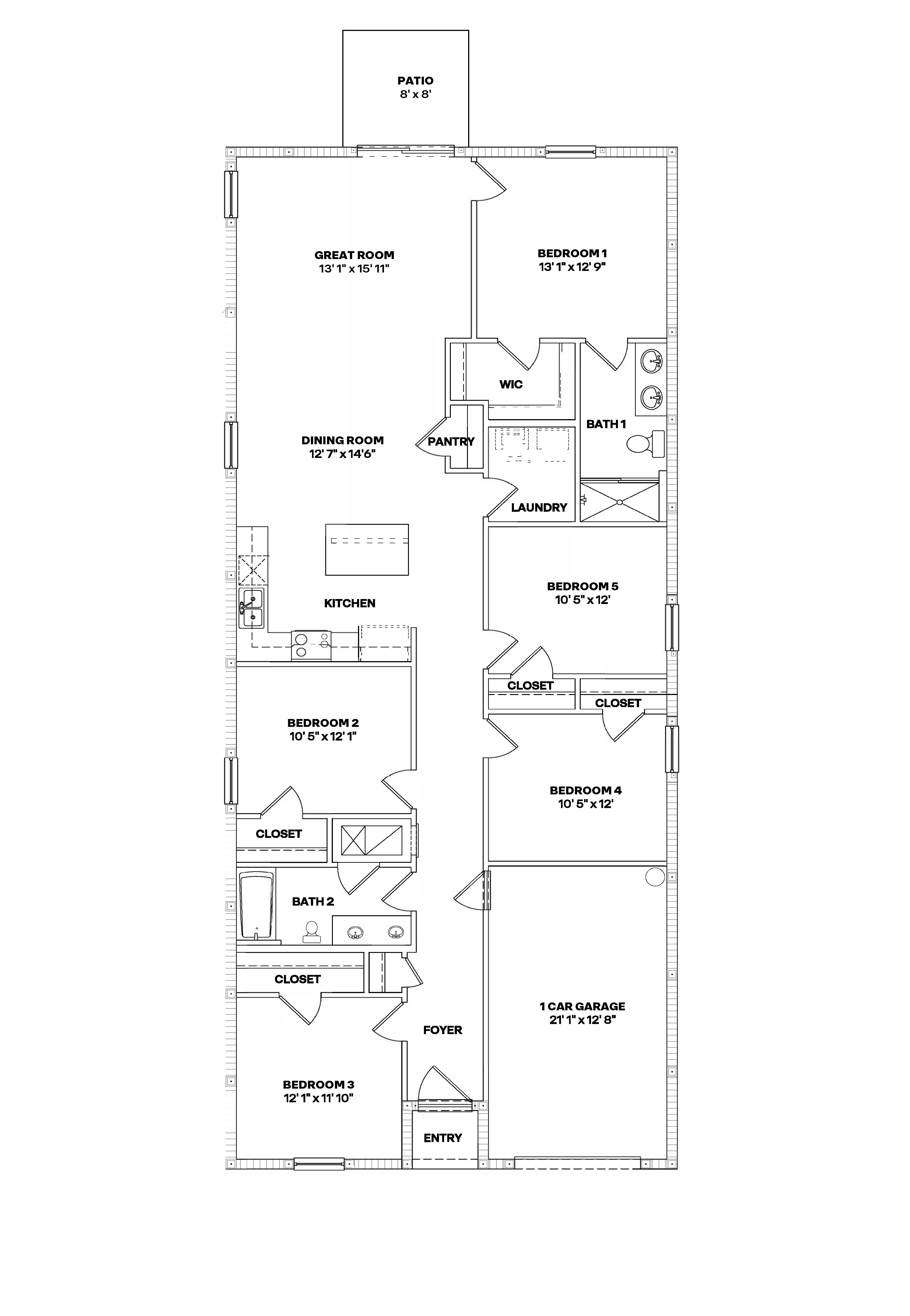
Alford Floor Plan
Call for Information
| Express Series®
5 Bed |
2 Bath |
1 Garage |
1 Story
1,739 Sq. Ft.
About this floor plan
The Alford floorplan, available in Somerset Bay in Spring Hill, Florida, is a thoughtfully designed single-story home featuring 5 bedrooms, 2 full bathrooms, and over 1,700 square feet of open-concept living space. Perfect for families of all sizes, this plan features a bright and airy layout that blends functionality with modern style. At the heart of the home, the kitchen impresses with sleek quartz countertops, a center island, and stainless-steel appliances, creating a stylish and functional space for cooking and entertaining. The adjoining dining and living areas open up to the outdoor patio, perfect for relaxing or hosting guests.
The Owner's Suite features a private ensuite bathroom, with a double vanity sink and large walk-in closet. The 4 additional bedrooms share the spacious second bathroom, also with a double vanity sink and quartz countertops. The dedicated laundry room is conveniently situated near the bedrooms and kitchen. With its versatile layout and upscale finishes, the Alford is the ideal place to call home. Like all homes in Somerset Bay, the Alford is complete with a state-of-the-art smart home system that keeps you connected to your home at all times, whether you're 5-minutes or a plane ride away. Contact us today to find your new home in Somerset Bay.
Read more about this plan
{"InvalidUserInputMessage":"Please check your data entered again","ServerErrorMessage":"We couldn't share this page via email, try again later","SuccessResultCode":0,"InvalidUserInputResultCode":1,"ServerErrorResultCode":2,"HostName":"http://www.drhorton.com","DefaultPageUrl":"https://www.drhorton.com/florida/west-central-florida/spring-hill/somerset-bay/floor-plans/e313","DefaultModalHeader":"Share this property."}
Facebook LinkedIn Email