About this floor plan
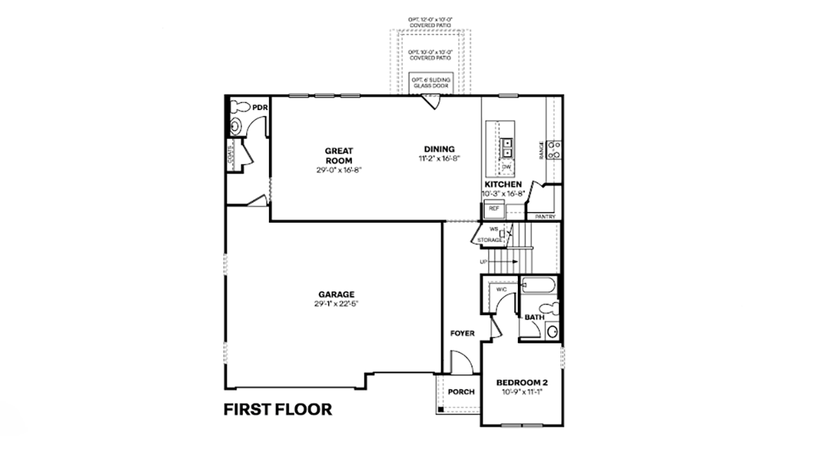
The Irvington is a beautifully crafted two-story home offering 2,569 square feet of well-planned living space with 5 bedrooms, 3.5 baths, and a spacious 3-car garage. Designed for both everyday comfort and effortless entertaining, this versatile floor plan blends open-concept living with thoughtfully placed private spaces to meet the needs of today’s busy households. The first floor welcomes you with a charming covered front porch that opens into an inviting foyer. Just beyond, the heart of the home unfolds into a bright and airy great room that seamlessly connects to the dining area and well-appointed kitchen. The kitchen features abundant cabinetry, ample counter space, and a functional layout ideal for hosting gatherings or enjoying quiet family meals. A conveniently located powder bath and storage areas add everyday practicality. Also on the main level, Bedroom 2 with a nearby full bath provides excellent flexibility for guests, a home office, or multi-generational living arrangements.
Upstairs, the private primary suite offers a relaxing retreat with a spacious bedroom, en-suite bath, and generous walk-in closet. Three additional bedrooms are thoughtfully positioned to provide comfort and privacy for family members or guests. A versatile flex room creates the perfect opportunity for a playroom, media space, home gym, or second living area—adapting easily to your lifestyle needs. The centrally located upstairs laundry room adds convenience right where it’s needed most. With its smart layout, open living spaces, and flexible room options, the Irvington is designed to grow with you. From the expansive garage storage to the functional flow between gathering spaces and private retreats, this home delivers the perfect balance of style, space, and everyday livability. Photos are representative of plan and will vary as built. Call for more information.
Read more about this plan
Facebook LinkedIn Email