About this floor plan
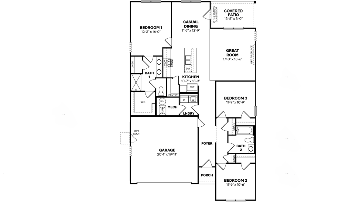
The Aria II is a thoughtfully designed single-story home that masterfully blends modern open-concept living with functional private spaces across its 1,601 square feet. This ranch-style floorplan offers a seamless flow from the moment you step through the charming covered front entry into a bright foyer. The heart of the home is a spacious great room, which opens generously into a kitchen and a dedicated dining area, making it an ideal setting for both daily family life and large-scale entertaining. The kitchen is a standout feature, typically centered around a large counter-height island that provides additional prep space and casual bar-style seating, often complemented by sleek stainless steel appliances, quartz countertops, and a walk-in pantry for ample storage.
Privacy is a priority in the Aria II’s layout, which utilizes a popular split-bedroom design. The luxurious primary suite is tucked away at the rear of the home, offering a quiet sanctuary complete with a large walk-in closet and a spa-like ensuite bathroom featuring a double-sink vanity and a spacious shower. On the opposite side of the main living area, two additional well-sized bedrooms share a second full bathroom, providing a perfect setup for children, guests, or a versatile home office. Large windows throughout these spaces ensure the home is filled with natural light, enhancing the airy and inviting atmosphere. Practicality is woven into every corner of the plan, from the conveniently located laundry room situated near the garage entry to the attached two-car garage that offers plenty of room for vehicles and storage. Outdoor living is equally emphasized, with a covered rear porch or lanai that extends the living space into the backyard, perfect for al fresco dining or evening relaxation. With its efficient use of square footage, modern amenities like integrated smart home technology, and a design that caters to a wide range of lifestyles, the Aria II stands out as a premier choice for those seeking a stylish and comfortable one-story living experience. Call for more information.
Read more about this plan
Facebook LinkedIn Email