Neuville Floor Plan
starting at $399,990
| Tradition SeriesSM
3 Bed |
2 Bath |
2 Garage |
1 Story
1,635 Sq. Ft.
About this floor plan
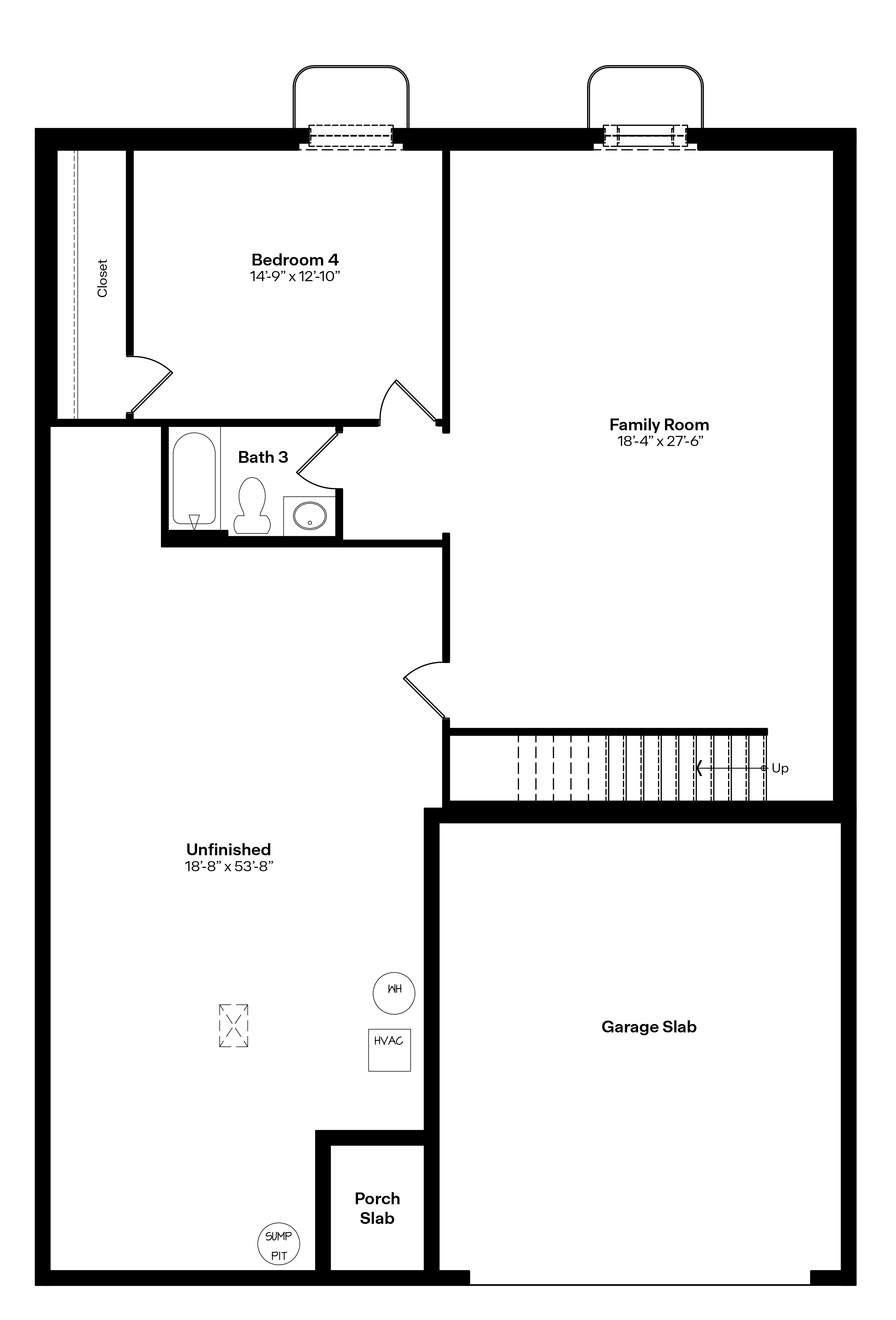
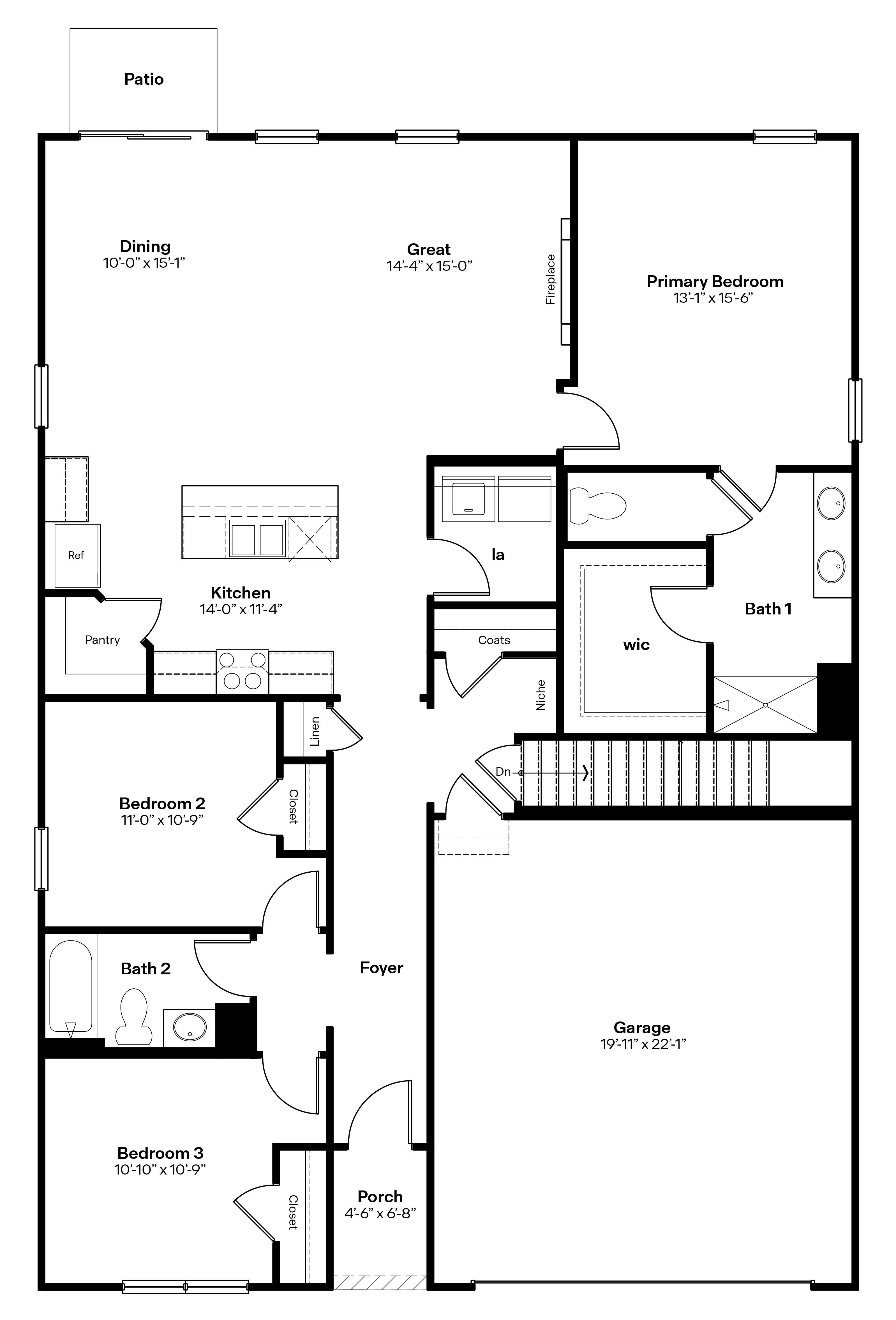
Welcome home to the Neuville floor plan at Centennial Estates in Ankeny, IA. This 4 bedroom, 3 bathroom ranch offers 2,511 sq. ft. of thoughtfully designed living space with an open-concept kitchen overlooking the living and dining areas and back patio. The living room features 9-ft ceilings, an electric fireplace and large windows that fill the home with natural light. The kitchen includes white cabinetry, quartz countertops, stainless steel appliances, subway tile backsplash, a large island, and a corner pantry for ample storage. The primary suite at the rear of the home offers a private bathroom with double vanity, ceramic-tiled walk-in shower, and walk-in closet, while two additional bedrooms share a second bathroom at the front of the home. Carpeted floors and sizable closets provide comfort and flexibility for bedrooms, offices, or bonus spaces. A convenient laundry room with shelving and a 2-3 car garage complete this home.
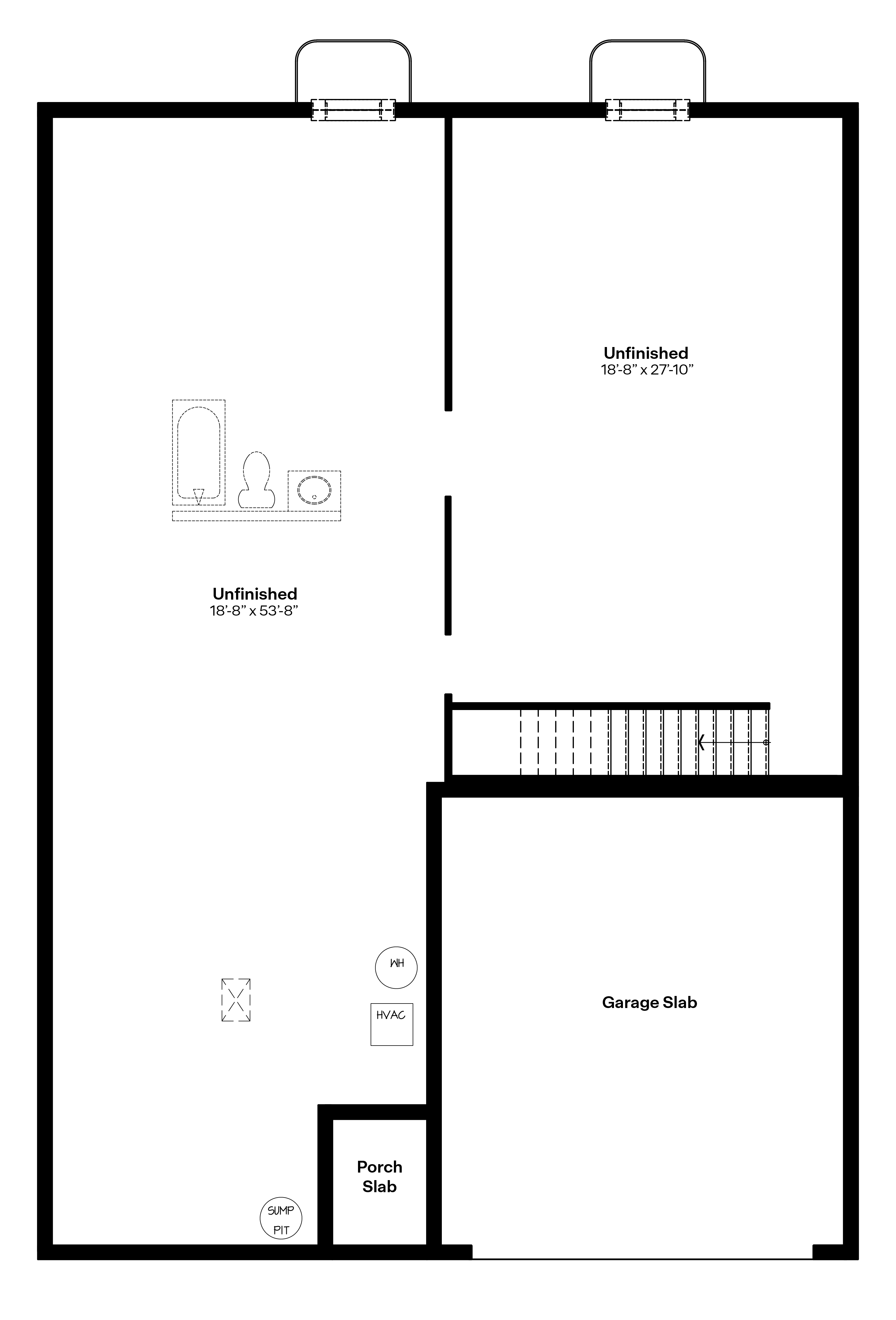
The finished lower level boasts a spacious rec. Adjacent to the rec room is the fourth bedroom and an additional bathroom. Discover the Neuville floor plan and make it your new home at Centennial Estates.
Read more about this plan
{"InvalidUserInputMessage":"Please check your data entered again","ServerErrorMessage":"We couldn't share this page via email, try again later","SuccessResultCode":0,"InvalidUserInputResultCode":1,"ServerErrorResultCode":2,"HostName":"http://www.drhorton.com","DefaultPageUrl":"https://www.drhorton.com/iowa/des-moines/ankeny/centennial-estates/floor-plans/neuv","DefaultModalHeader":"Share this property."}
Facebook LinkedIn Email