About this home
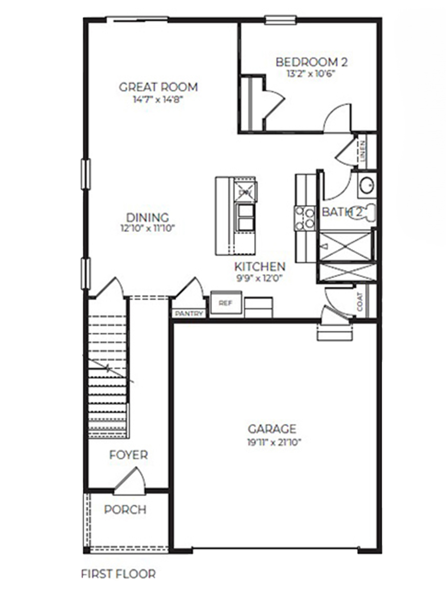
Discover 506 Hetty Boulden Lane in Elkton, MD, a new home soon to be built in our newest community, The Preserve at Southfields. The Elm, a contemporary 2,415 square feet two-story home, features five bedrooms, three bathrooms, a loft and a two-car garage. As you step into the home's distinct foyer you will notice that the stairs are separated from the main living space. Continuing into the home, the open-concept floorplan comes to life as you take in the kitchen, dining area and living room. The spacious kitchen showcases an abundance of white cabinetry and granite counter space, an ample walk-in pantry, a large island with sink and additional room for seating and stainless-steel appliances.
The kitchen has an eat-in dining space that flows perfectly into the sizeable living room. A coat closet is tucked away near the entrance of the garage and there is additional storage space underneath the stairs to the second floor. Uniquely, this home offers a first-floor, secondary bedroom that can be used for overnight guests, a home office or a hobby room. Adjacent to the bedroom is a full bathroom with a walk-in shower and a linen closet. Upstairs, you will enter the inviting loft which also has a linen closet, a door to the owner's suite, and the hallway to the remaining secondary bedrooms and laundry room. The owner’s suite boasts a well-sized bedroom, two ample walk-in closets and an oversized owner’s bathroom with double vanity, a walk-in shower and a toilet closet. The three additional roomy secondary bedrooms, a spacious secondary bathroom, and the laundry room complete the upstairs. The home will include a white window treatment package, a fully sodded, irrigated, and landscaped yard, and the exclusive Smart Home® package through ADT giving you complete peace of mind living in your new home. Pictures, artist renderings, photographs, colors, features, and sizes are for illustration purposes only and will vary from the homes as built. Image representative of plan only and may vary as built. Images are of model home and include custom design features that may not be available in other homes. Furnishings and decorative items not included with home purchase.
Read more about this available home
Facebook LinkedIn Email