About this floor plan
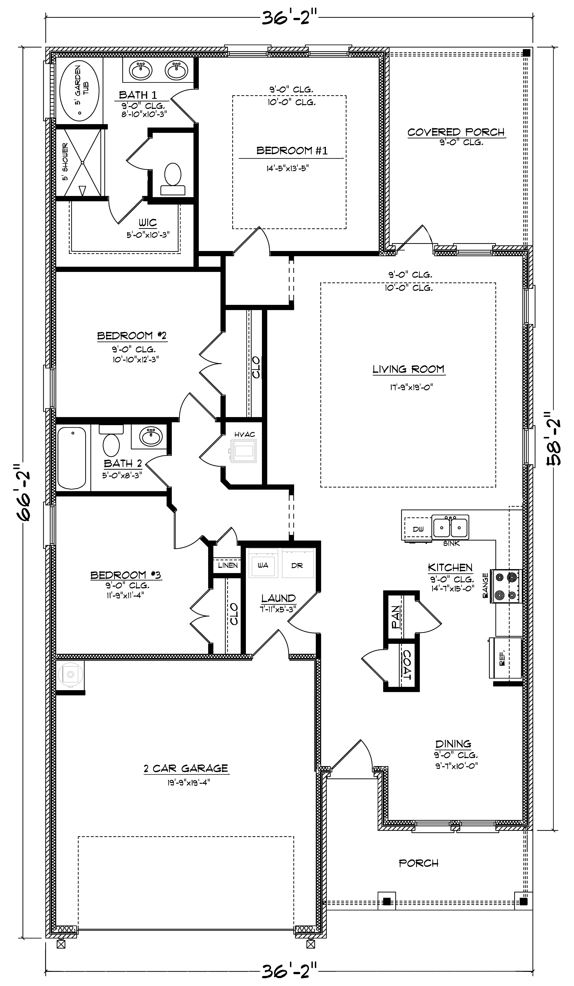
Welcome to The Emily floorplan, a charming haven designed for comfort and modern living. Spanning over 1,600 square feet, this thoughtfully crafted home in our Mallard Creek community features 3 bedrooms and 2 bathrooms, ideal for families seeking both space and style. As you step onto the inviting front porch and enter, you'll find a delightful dining room, perfect for family gatherings and memorable meals. Beyond, the kitchen captivates with its elegant shaker-style cabinetry and sleek stainless-steel appliances, creating a perfect blend of functionality and aesthetics. This well-appointed kitchen flows seamlessly into the living room, which provides access to a cozy corner back porch, perfect for enjoying gentle Gulf breezes and serene evenings.
On the opposite side of the home, you'll discover two generous bedrooms that share a beautifully designed full bathroom, alongside a convenient laundry room with direct access to the two-car garage. Retreat to the tranquil primary bedroom, situated privately in the back corner, where you'll find an indulgent ensuite featuring a dual sink vanity, a spacious shower, a separate garden tub for relaxation, a water closet for added privacy, and an expansive walk-in closet. Like all homes in Mallard Creek, the Emily comes equipped with the Home is Connected™ smart home package, empowering you to monitor your home effortlessly from your smart device, whether you're near or far. This home is also being built to FORTIFIED Gold HomeTM certification. See your Sales Representative for details. Pictures, photographs, colors, features, and sizes are for illustration purposes only and will vary from the homes as built. Images are of model home and may include custom design features not available in other homes. Furnishings and decorative items are not included with home purchase. Some images may be virtually staged or have topography enhanced. Landscaping may be a decorator item not included in the purchase price and may not be available.
Read more about this plan
Facebook LinkedIn Email