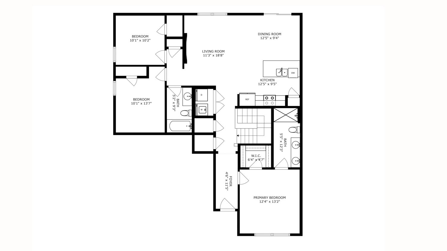
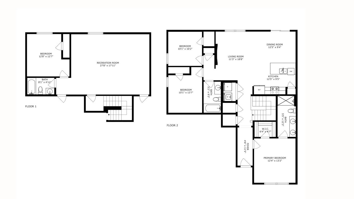
About this floorplan
Introducing Alexander Creek, a 55+, active adult new home community in Raymore, MO, just 25 miles south of the Kansas City area. This community includes lawn maintenance, so you can live comfortably knowing exterior lawn maintenance is done for you. Alexander Creek will offer one-story ranch floorplans ranging from 1,498 sq. ft. upward, with 3-5 bedrooms, 2-3 bathrooms, and a 2-car garage. As you step inside, you'll immediately notice the attention to detail and high-quality finishes throughout. The kitchen boasts beautiful cabinets with crown molding, quartz countertops with tile backsplash, and brand-new stainless-steel appliances.
The primary suite of each new home at Alexander Creek is designed to be your inspiring oasis. It features a spacious bedroom, a private en-suite bathroom to enjoy your spacious and walk-in shower, and a sizeable walk-in closet to complete your hideaway. Homes in this neighborhood will come equipped with smart home technology, allowing you to easily control your home. With a video doorbell, garage door control, lighting ,door lock, thermostat and voice that are all controlled through one convenient app. Whether it's adjusting the temperature or turning on the lights, convenience is at your fingertips. Homes in Alexander Creek also boast James Hardie siding, which includes a 15-year color warranty guarantee. With the single-story ranch-style floor plans, modern features, and a prime location near I-49, this new 55+ home community is truly a gem. Don't miss out on the opportunity to make it your own. Please visit us and schedule a tour today to discover our D.R. Horton community’s incredible value at Alexander Creek.
Read more about this plan
Request information
Facebook LinkedIn Email