Colorado Floor Plan
Call for Information
| Tradition SeriesSM
4 Bed |
2.5 Bath |
2 Garage |
2 Story
1,847 Sq. Ft.
About this floor plan
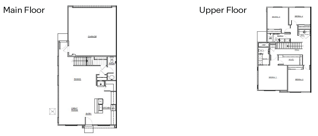
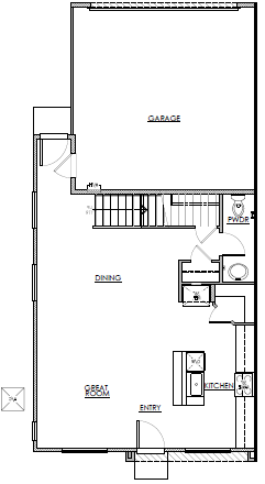
The Colorado floorplan at Indigo Sky in Minden, Nevada is designed for those who want extra space and a more flexible two-story layout. Offering 1,847 square feet, this townhome includes 4 bedrooms, 2.5 bathrooms, and a 2-car garage, delivering comfort and functionality with the quality craftsmanship of D.R. Horton.
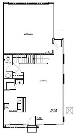
The main floor features well-defined living areas that provide room to relax, gather, and entertain. The kitchen serves as a central hub of the home with abundant cabinetry and counter space, while remaining connected to the surrounding great room and dining areas for easy everyday living. A convenient powder bathroom on the first floor adds practicality for guests.
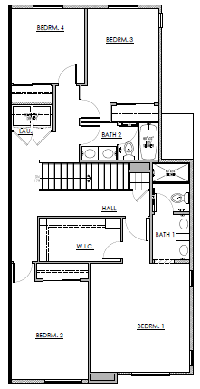
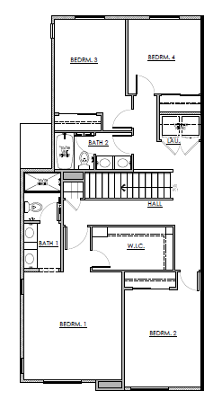
Upstairs, the Colorado’s layout prioritizes privacy. The primary suite is thoughtfully positioned to create a quiet retreat, complete with a spacious bathroom and ample closet space. Two additional bedrooms and a full bathroom offer versatility for family members, guests, or a dedicated home office. An upstairs laundry area enhances convenience and efficiency.
Situated in the Indigo Sky community, this home places residents in the heart of Minden, with close proximity to outdoor recreation, local shops, dining, and major routes throughout Northern Nevada. With scenic surroundings and a welcoming small-town atmosphere, Indigo Sky offers a lifestyle that balances comfort and connection.
Explore spacious, flexible living with the Colorado floor plan by D.R. Horton at Indigo Sky in Minden, NV.
Read more about this plan
{"InvalidUserInputMessage":"Please check your data entered again","ServerErrorMessage":"We couldn't share this page via email, try again later","SuccessResultCode":0,"InvalidUserInputResultCode":1,"ServerErrorResultCode":2,"HostName":"http://www.drhorton.com","DefaultPageUrl":"https://www.drhorton.com/nevada/reno/minden/indigo-sky/floor-plans/1847","DefaultModalHeader":"Share this property."}
Facebook LinkedIn Email