Keystone Floor Plan
Call for Information
| Express Series®
3 Bed |
2.5 Bath |
2 Garage |
2 Story
1,547 Sq. Ft.
About this floor plan
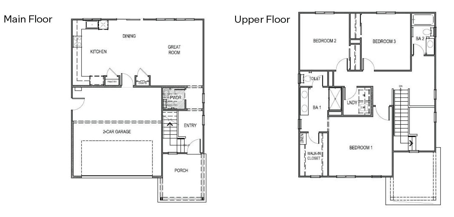
Introducing the Keystone plan, a unique two-story floorplan in our Trailside community in Reno. This three-bedroom, 2.5-bath plan has the perfect amount of space at 1,547 sq. ft. and a 2-car garage. Exterior elevation options include Farmhouse, Craftsman, and West Coast. The first floor is dedicated to the open-concept living space, with the great room, dining area, and kitchen blending seamlessly. You'll also have easy indoor access to the garage. Here, you'll find all the space you need to prepare your meals and a beautifully designed kitchen to work in. Upstairs, you'll find all three bedrooms and the laundry room, so you won't need to worry about carrying your laundry up and down the stairs. Each bedroom is carpeted and cozy. The primary bedroom is a comfortable and spacious place to relax with an attached bathroom. There's plenty of room to get ready in the morning with a double vanity, separate toilet, and large walk-in closet.
Like with all our homes, you’ll never be too far from home with our smart home technology integrated into your home. Find security and control through the Qolsys panel, your phone, or voice and when you want to add additional smart home tech, easily integrate with Z-wave or Bluetooth technology. Experience comfortable living in Reno—schedule your tour at Trailside today.
Read more about this plan
{"InvalidUserInputMessage":"Please check your data entered again","ServerErrorMessage":"We couldn't share this page via email, try again later","SuccessResultCode":0,"InvalidUserInputResultCode":1,"ServerErrorResultCode":2,"HostName":"http://www.drhorton.com","DefaultPageUrl":"https://www.drhorton.com/nevada/reno/reno/trailside/floor-plans/1547","DefaultModalHeader":"Share this property."}
Facebook LinkedIn Email