About this floor plan
Excited to talk new homes?
Text with us
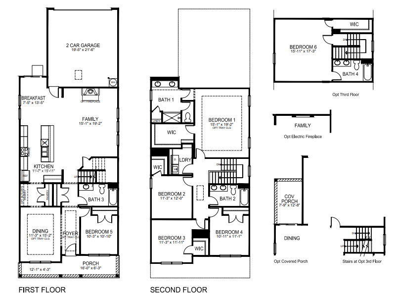
The Jackson is a spacious and versatile two story home designed to accommodate growing households and flexible living needs. Offering 5 bedrooms, 3 full baths, and a 2 car garage, this thoughtfully planned layout provides generous living space across every level, with options that allow the home to grow with you.
The main floor features a welcoming front porch and foyer that open into an expansive, open concept living area. The family room flows seamlessly into the breakfast area and kitchen, creating a bright and inviting space ideal for everyday living and entertaining. The kitchen offers ample counter space, a functional layout, and easy access to both casual and formal dining areas. A first floor bedroom with access to a full bath adds exceptional flexibility, perfect for guests, a home office, or multi generational living.
Upstairs, the primary suite serves as a private retreat, complete with a spacious walk in closet and an en suite bathroom designed for comfort and convenience. Three additional secondary bedrooms, two full baths, and a centrally located laundry room complete the second floor, ensuring privacy and functionality for everyone.
For those needing even more space, the Jackson offers an optional third floor bedroom and full bath, ideal for a guest suite, media room, or private escape. Optional features such as a covered porch, balcony, or electric fireplace allow homeowners to personalize the home to fit their lifestyle.
With its expansive layout, flexible living spaces, and thoughtful design throughout, the Jackson delivers comfort, functionality, and room to grow—making it a standout choice for modern living. The Jackson is a wonderful place to call home at Oak Grove Hill.
Facebook LinkedIn Email