About this home
Excited to talk new homes?
Text with us
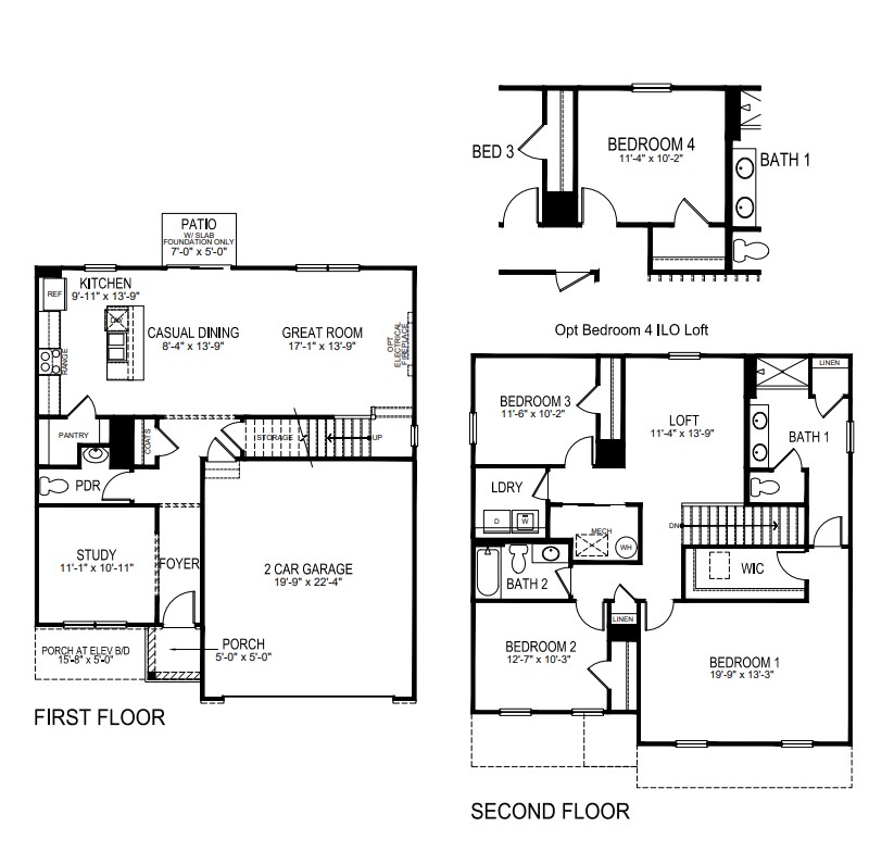
Lay your eyes on 61 Cider Mill Drive, here you will find the Sienna floor plan within our Ashville community, Walnut Mill! The Sienna is a beautifully designed two-story new construction home featuring 3 spacious bedrooms and 2.5 baths. This open-concept design showcases a thoughtfully placed turnback staircase, tucked away from the foyer for added privacy and convenience.
At the heart of the home, the modern kitchen offers elegant cabinetry, a generous walk-in pantry, and a large center island with ample seating, perfect for casual meals and entertaining.
Upstairs, the oversized primary suite serves as a private retreat with a luxurious ensuite bath and a roomy walk-in closet. Two additional bedrooms, each with their own walk-in closets. You will also find a versatile loft space and a conveniently located laundry room to round out the second floor, combining functionality with comfort. With its open layout, stylish finishes, and effective design, the Sienna delivers everything today’s families want in a brand-new home. Schedule your tour today to experience the quality and value of new construction living. This home is currently under construction. Photos and video may be similar but not necessarily of subject property, including interior and exterior colors, finishes, and appliances. All D.R. Horton Columbus homes include our America’s Smart Home℠ Technology which allows you to monitor and control your home from your couch or from 500 miles away. Be connected to your home at all times through your smartphone, tablet or computer. It has never been easier to settle into a new routine. Set the scene with your voice, from your phone – or schedule it and forget it. Through Smart Home℠ Technology, we are able to ensure you have the right smart home system to grow with you. Our homes speak to Bluetooth, Wi-Fi, Z-Wave and cellular devices so you can sync with almost any smart device.
Read more about this available home
Facebook LinkedIn Email