About this home
Excited to talk new homes?
Text with us
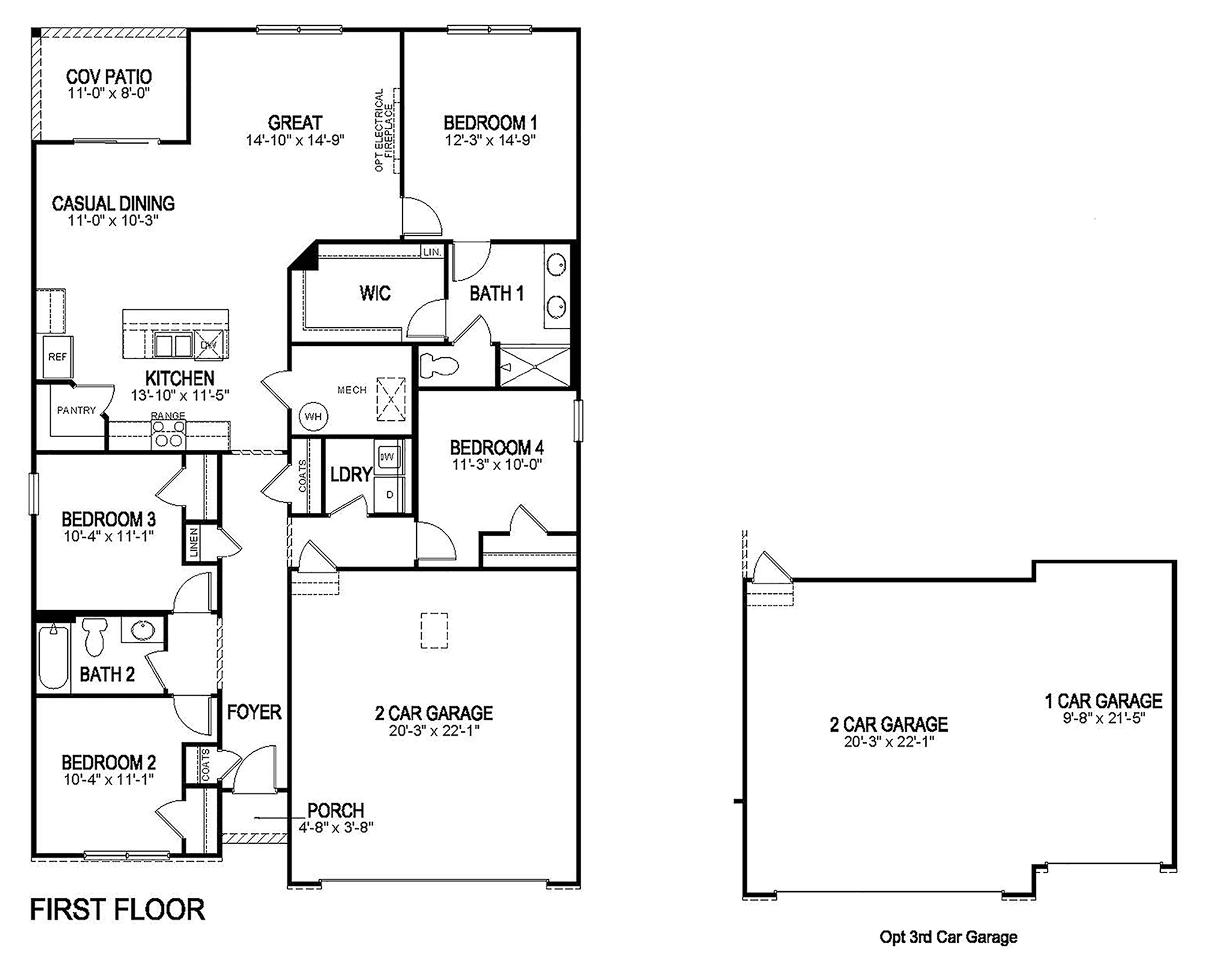
Welcome to 1018 Sherwood Loop, home to the Chatham plan within our Bellefontaine community, Ludlow Ridge! This beautifully designed single-story home offers an efficient and spacious layout perfect for modern living. This new construction home features four bedrooms and two full bathrooms within 1,771 square feet, making it an ideal choice for growing families or those seeking a comfortable, move-in ready residence.
The Chatham features an open-concept design that seamlessly integrates the spacious kitchen, dining area, and great room, creating a bright and inviting space perfect for hosting guests or enjoying family time. The well-appointed kitchen welcomes a large built-in island with breakfast bar seating, a convenient walk-in corner pantry, and ample cabinet and counter space, providing both style and functionality. The primary bedroom serves as a private retreat with an en-suite bathroom that includes a spacious walk-in shower, double bowl vanity, private water closet, and a generously sized walk-in closet. Additional highlights include a covered rear patio ideal for morning coffee or relaxing evenings, a two-car garage for additional storage, and a dedicated laundry room that enhances utility and organization. This home is currently under construction. Photos and video may be similar but not necessarily of subject property, including interior and exterior colors, finishes, and appliances. Take advantage of added security in your new D.R. Horton home with our Home is Connected features. Using one central hub that talks to all the devices in your home, you can control the lights, thermostat, and locks, all from your cellular device. Convenience lies at your fingertips.
Read more about this available home
Facebook LinkedIn Email