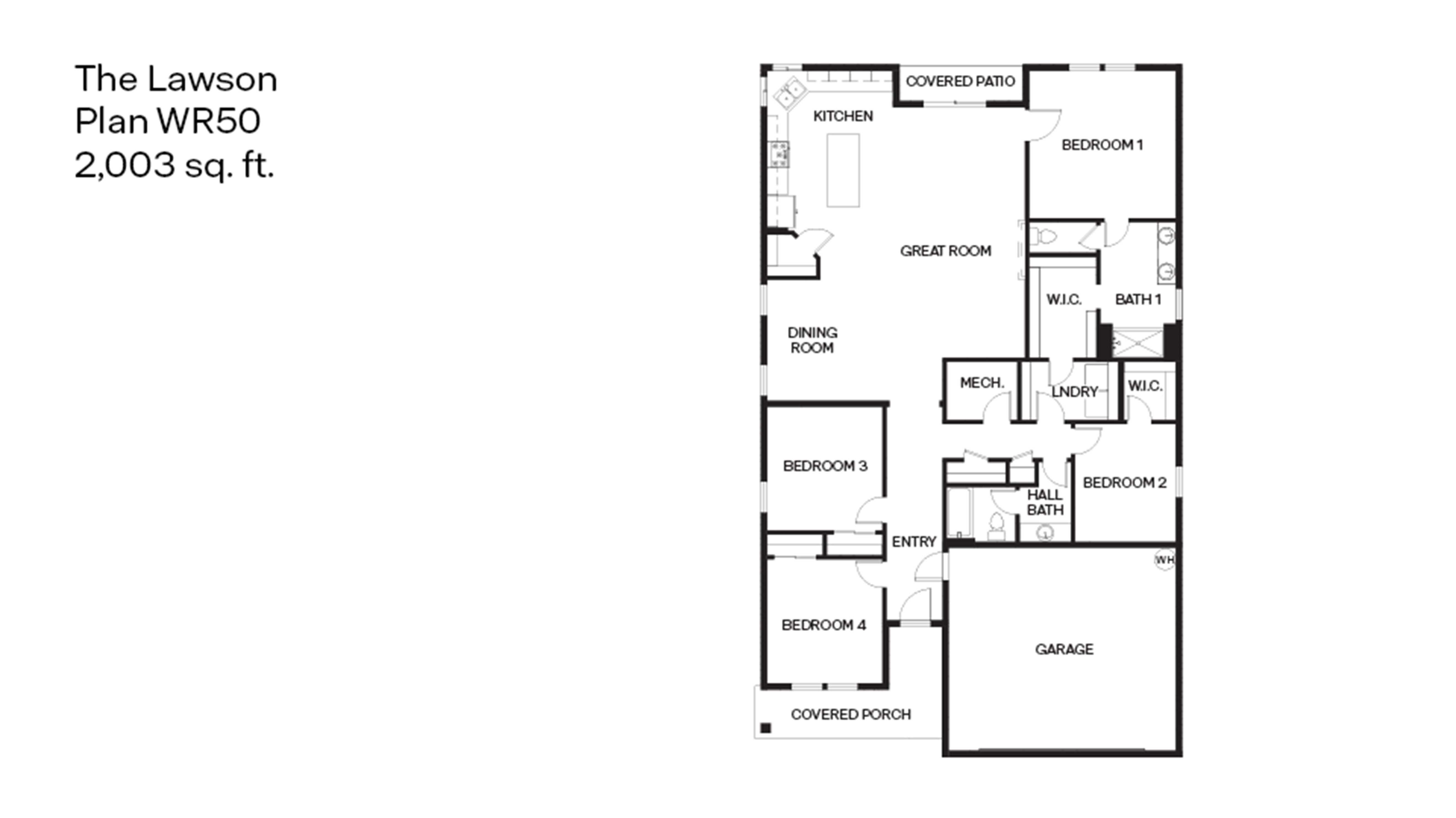
Laswon Floor Plan
Call for Information
| Tradition SeriesSM
4 Bed |
2 Bath |
2 Garage |
1 Story
2,003 Sq. Ft.
About this floor plan
The Lawson is a single-story floor plan at Sorrento Estates in Salem, Oregon by D.R. Horton. This 2,003 square foot home has 4 bedrooms, 2 bathrooms, and a 2-car garage. Step inside where you are met with two secondary bedrooms, both are carpeted and cozy. Wander to the bright open concept living space that includes the dining area, great room, and kitchen. The great room features a beautiful electric fireplace that is perfect for cozy movie nights. Come together for mealtimes at the kitchen island with a breakfast bar. Match any decorating style with solid surface countertops, a roomy pantry, shaker-style cabinets, and stainless-steel appliances, making for a timeless elegance. Located right outside is a serene, covered patio that allows for a peaceful place to sip on your coffee.
The primary bedroom is located at the back of the home. It has an en suite bathroom with a double vanity, a closet toilet for extra privacy, walk-in shower, and a spacious walk-in closet with a door that connects to the laundry room. The fourth bedroom is tucked down a separate hallway and holds a walk-in closet.
Every D.R. Horton home is equipped with smart home technology and a 10-year limited warranty, ensuring peace of mind and convenience at your fingertips. Schedule a tour to check out the Lawson today! Photos are representative of plan only and finishes may vary as built.
Read more about this plan
{"InvalidUserInputMessage":"Please check your data entered again","ServerErrorMessage":"We couldn't share this page via email, try again later","SuccessResultCode":0,"InvalidUserInputResultCode":1,"ServerErrorResultCode":2,"HostName":"http://www.drhorton.com","DefaultPageUrl":"https://www.drhorton.com/oregon/willamette-valley/salem/sorrento-estates/floor-plans/wr50","DefaultModalHeader":"Share this property."}
Facebook LinkedIn Email