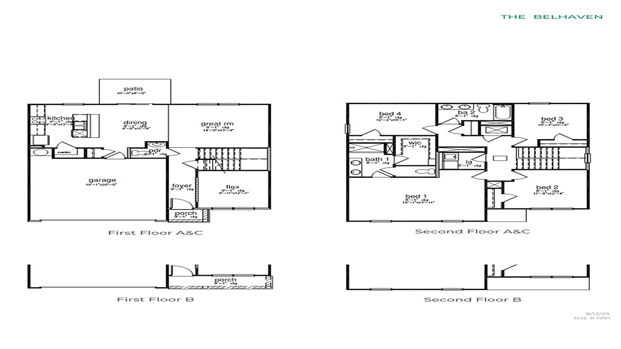
Belhaven Floor Plan
Call for Information
| Express Series®
4 Bed |
2.5 Bath |
2 Garage |
2 Story
1,991 Sq. Ft.
About this floor plan
Welcome to the Belhaven The Belhaven floor plan features a versatile two-story design with thoughtfully arranged living and private spaces. The first floor offers a welcoming foyer that leads into an open great room, creating a comfortable setting for daily living and entertaining. The kitchen is centrally located with ample cabinetry and counter space and connects to a dedicated dining area. A rear patio extends the living space outdoors, while a flex room on the main level provides options for a home office, hobby space, or additional living area. An attached garage and convenient storage areas complete the first floor. The second floor includes four well-sized bedrooms and two full bathrooms. The primary suite features a private en-suite bath and walk-in closet. Additional bedrooms offer flexibility for guests, work-from-home needs, or creative use. A centrally located hallway provides efficient access to all rooms, supporting a functional layout.
Designed with adaptability and comfort in mind, the Belhaven floor plan offers multiple layout options to suit a variety of lifestyles.
Read more about this plan
{"InvalidUserInputMessage":"Please check your data entered again","ServerErrorMessage":"We couldn't share this page via email, try again later","SuccessResultCode":0,"InvalidUserInputResultCode":1,"ServerErrorResultCode":2,"HostName":"http://www.drhorton.com","DefaultPageUrl":"https://www.drhorton.com/south-carolina/charleston/north-charleston/havenwood/floor-plans/1991","DefaultModalHeader":"Share this property."}
Facebook LinkedIn Email