Hayden Floor Plan
Call for Information
| Express Series®
5 Bed |
3 Bath |
2 Garage |
2 Story
2,511 Sq. Ft.
About this floor plan
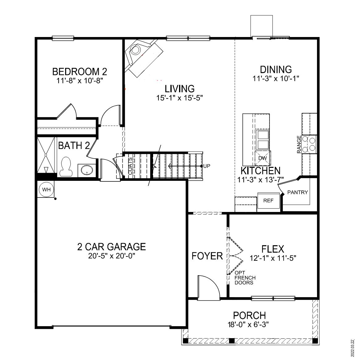
The Hayden is one of our two-story plans featured at Pine Lake Estates in Anderson, SC offering 3 modern elevations. It also offers a secondary bedroom on the main floor. The Hayden is a spacious and modern two-story home. The home features five bedrooms, three bathrooms and a two-car garage. Upon entering the home, you’ll be greeted by an inviting foyer connecting to a home office, then leading into the center of the home. This open-planned space features a large living room, dining area, and functional kitchen. The kitchen is equipped with a walk-in pantry, stainless steel appliances, and center island with a breakfast bar. Also located on the first floor, located off the living room, is a convenient guest bedroom and full bathroom.
The Hayden upstairs features a spacious primary suite, complete with walk-in closet and primary bathroom with dual vanities. The additional three bedrooms share a third full bathroom. There is an upstairs loft space, perfect for family entertainment, gaming, or a reading area. With its luxurious design the Hayden is the perfect place to call home. Do not miss this opportunity to make the Hayden yours at Pine Lake Estates.
Read more about this plan
{"InvalidUserInputMessage":"Please check your data entered again","ServerErrorMessage":"We couldn't share this page via email, try again later","SuccessResultCode":0,"InvalidUserInputResultCode":1,"ServerErrorResultCode":2,"HostName":"http://www.drhorton.com","DefaultPageUrl":"https://www.drhorton.com/south-carolina/greenville/anderson/pine-lake-estates/floor-plans/2511","DefaultModalHeader":"Share this property."}
Facebook LinkedIn Email