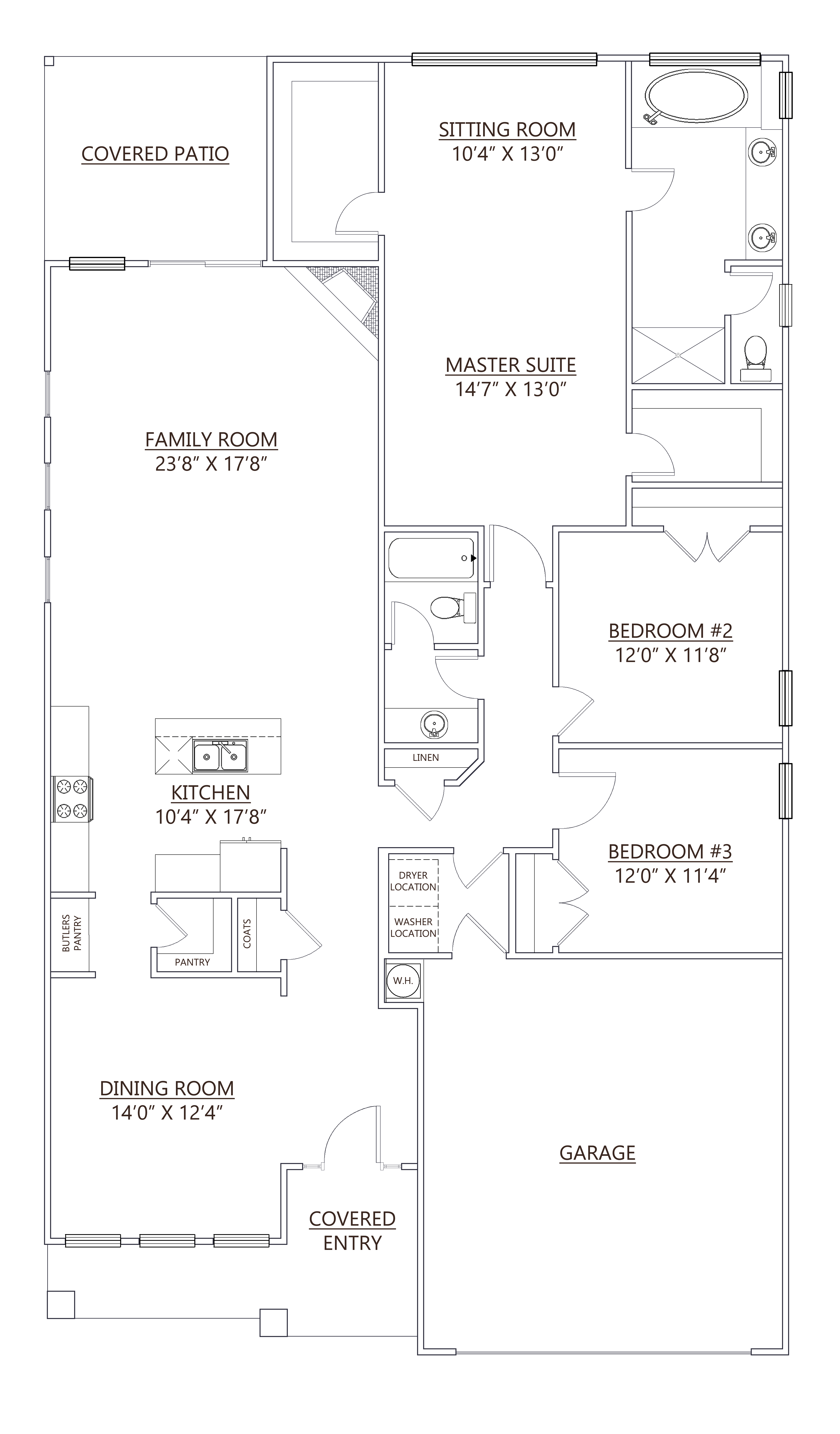
Keystone Floor Plan
Call for Information
| Tradition SeriesSM
3 Bed |
2 Bath |
2 Garage |
1 Story
2,100 Sq. Ft.
About this floor plan
The Keystone is one of our beautifully designed one-story homes featured at Briargate in Fountain Inn, SC. This spacious home offers the perfect blend of comfort and functionality with three bedrooms, two full bathrooms, and a two-car garage. The open-concept design creates a welcoming atmosphere, ideal for both everyday living and entertaining.
As you enter through the covered entry, you’ll find a formal dining room that flows into the well-appointed kitchen. The kitchen features modern appliances, a pantry, a butler’s pantry, and a large island overlooking the family room, making it easy to stay connected while cooking or hosting guests. The family room opens to a covered patio, providing the perfect space to relax and enjoy the outdoors.
The primary suite serves as a private retreat, complete with a sitting area, spacious bathroom with dual vanities, a soaking tub, a separate shower, and a walk-in closet. Two additional bedrooms share access to a secondary bathroom, offering comfort and convenience for family or guests. With its thoughtful layout, open living spaces, and modern features, The Keystone offers everything you need to feel right at home.
Read more about this plan
{"InvalidUserInputMessage":"Please check your data entered again","ServerErrorMessage":"We couldn't share this page via email, try again later","SuccessResultCode":0,"InvalidUserInputResultCode":1,"ServerErrorResultCode":2,"HostName":"http://www.drhorton.com","DefaultPageUrl":"https://www.drhorton.com/south-carolina/greenville/fountain-inn/briargate/floor-plans/skey","DefaultModalHeader":"Share this property."}
Facebook LinkedIn Email