About this floor plan
The Bakersfield is one of our thoughtfully designed two-story floorplans featured at Bentley Manor in Greenville, South Carolina
.
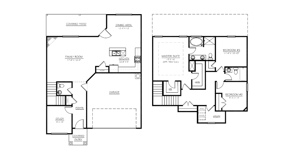
This 1,858-square-foot home features three bedrooms, two and a half bathrooms, and a two-car garage. With its blend of modern craftsmanship and elegant finishes, the Bakersfield delivers both comfort and sophistication.
The exterior showcases Hardie Board siding, architectural shingles, and a fully sodded lawn with an irrigation system for lasting curb appeal. Inside, 9-foot ceilings and luxury vinyl plank flooring enhance the main level’s open-concept layout. The living room includes a raised-hearth gas log fireplace with stone to the mantel and a shiplap accent wall, creating a warm and inviting centerpiece.
The kitchen features 42” cabinetry with crown molding, soft-close drawers, upgraded quartz countertops, a ceramic tile backsplash, and a farmhouse sink. Additional highlights include a cabinet-integrated trash system, stainless steel appliance package, and black hardware throughout.
Upstairs, the primary bedroom is a true retreat featuring dual walk-in closets and a luxurious en-suite bath with double sinks, a Whirlpool garden tub, and a separate ceramic tile shower with a frameless glass door. Secondary bedrooms are spacious and share a beautifully appointed full bath with quartz vanities.
Additional features include oak stair treads, window blinds, a Smart Home Manager package, and both covered and uncovered patios for outdoor living.
With its elevated design, modern functionality, and high-end finishes, The Bakersfield perfectly combines style and comfort in every detail.
Read more about this plan
Facebook LinkedIn Email