Carson Floor Plan
Call for Information
| Tradition SeriesSM
3 Bed |
2.5 Bath |
1 Garage |
2 Story
1,774 Sq. Ft.
About this floor plan
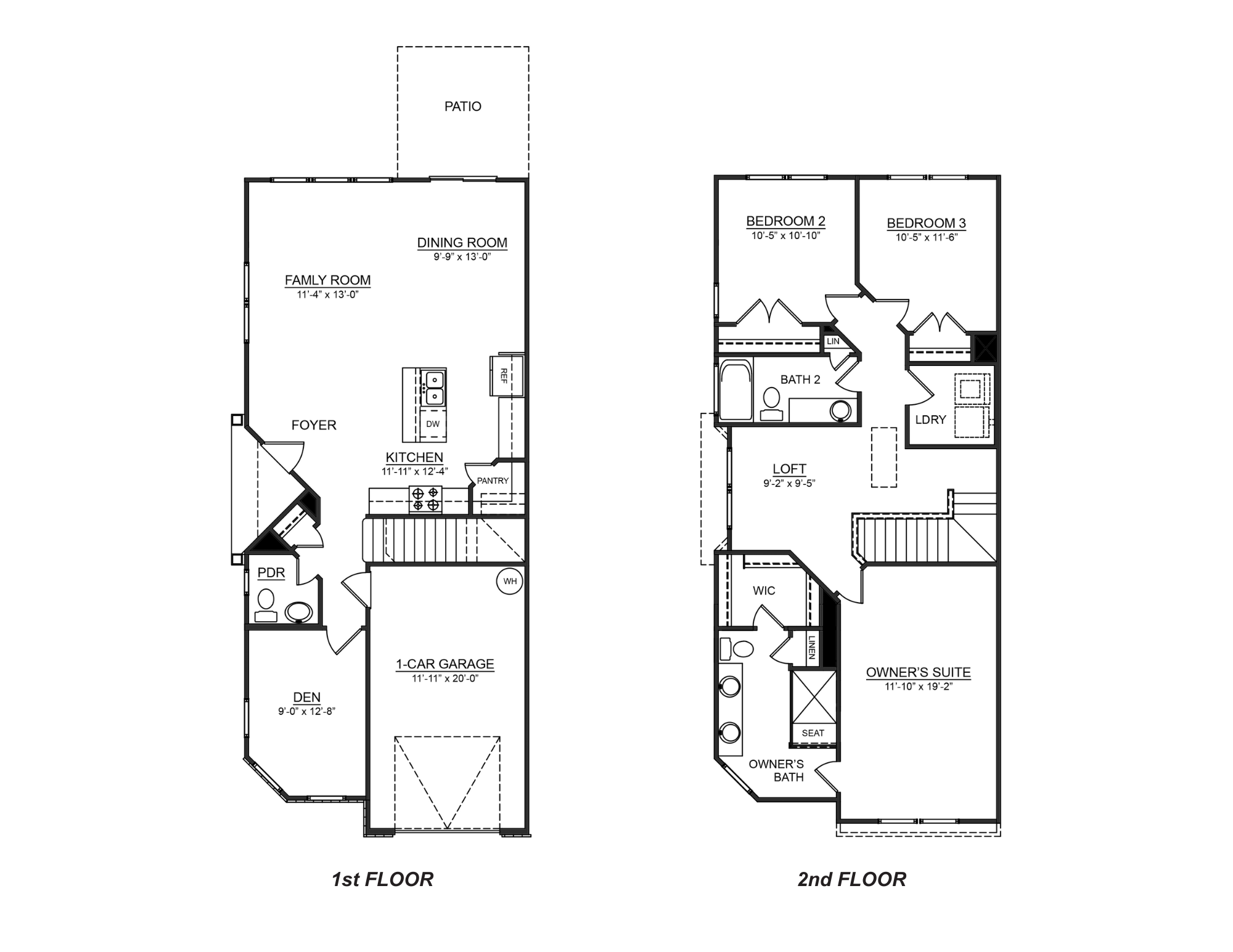
The Carson is one of our newest two-story townhome floorplans showcased in Ken's Crossing. The Carson features 3 bedrooms, 2.5 bathrooms, 1,763 sq. ft. of living space, and a 1-car front-load garage. As you enter through the front door you’re greeted by an open floorplan that leads you into an inviting living and dining room with the staircase on your left, then into the open-concept kitchen, living, and dining areas. The kitchen boasts shaker-style cabinets, quartz countertops, and stainless steel appliances, making it perfect simultaneous meal prep, cooking, and entertaining. The living and dining area is overlooked by the kitchen, keeping you close to the action. Relax and unwind on your back patio.
The Caron's second-floor hosts the primary bedroom, a loft and 2 additional bedrooms and a full bathroom. Indulge in the comfort of carpeted floors and spacious closets in every bedroom. The primary bedroom has its own attached bathroom, featuring a 5’ walk-in shower with a clear glass door, a double-bowl vanity with quartz countertops, and a spacious walk-in closet. The laundry room is ideally located in the hallway which rounds out the second floor.
Read more about this plan
{"InvalidUserInputMessage":"Please check your data entered again","ServerErrorMessage":"We couldn't share this page via email, try again later","SuccessResultCode":0,"InvalidUserInputResultCode":1,"ServerErrorResultCode":2,"HostName":"http://www.drhorton.com","DefaultPageUrl":"https://www.drhorton.com/south-carolina/greenville/moore/kens-crossing/floor-plans/t243","DefaultModalHeader":"Share this property."}
Facebook LinkedIn Email